No results available
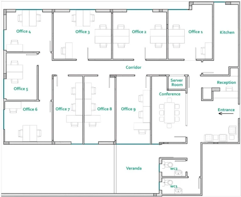
This statement-maker office space located at a prime location in Limassol’s city center belongs to a unique building with a standout bold architecture creating a bigger, better working place to be. The office enjoys the latest technology, secure environment and outdoor buzz on the elevated roof garden taking center stage in a vibrant urban location of Limassol. Located on the 5th floor, the 206sqm of flexible, collaborative space is built to connect people complemented by two-level ample parking area for 30 vehicles. There is a 6meter high ceiling spacious lobby reception guest lounge area and a mezzanine that offers training rooms, conference rooms, filing general storage areas with WC facilities.
The top floor office also benefits from its private 210sqm roof garden offering breathtaking views of the city with enclosed kitchen and WC facilities, built in bar and ample dining and sitting areas.
Delivery date: September 2023
Support
Information
Cookie Consent. We use cookies to improve your experience, analyze traffic, and personalize content. By clicking "Accept," you consent to our use of cookies. Cookie Policy Privacy Statement