Cyprus Real Estate Marketplace

2 Bedroom Apartment for Sale in Empa, Paphos District

  • 2
  • 1
  • Pre-Owned
  • 85m²
  • €499 000
Price per m²
€5871/m²
Title Transfer Fee
~€16,560
  • Ref. #: 24527

The property consist of four (4) apartments located in Emba, Paphos. Separate title deeds are issued for all 4 apartments.
Built in 2009, the property offers modern living spaces with a prime location, with close proximity to Public High School of Emba, local amenities and services.

The Property Consists of:
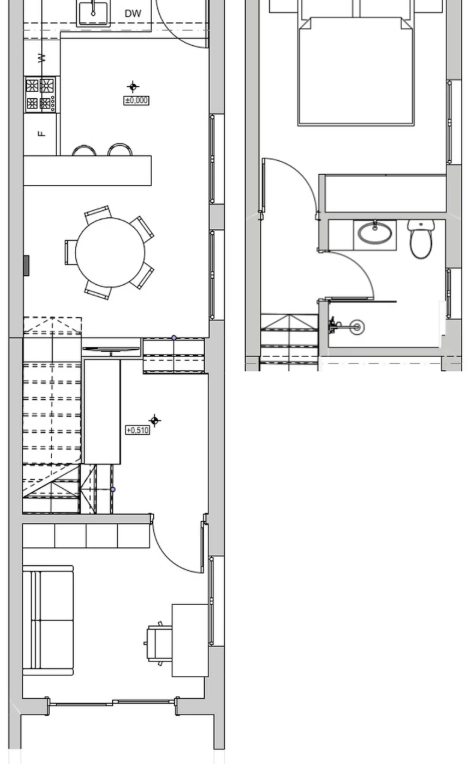
The apartment with registration no. 0/11271 is located on ground floor and consists of an open plan sitting , dining and kitchen area, two (2) bedrooms, a bathroom and balconies.
The apartment with registration no. 0/11272 is located on ground floor and consists of an open plan sitting , dining and kitchen area, a bedroom, a bathroom and balcony.
The apartment with registration no. 0/11273 is located on ground floor and consists of an open plan sitting , dining and kitchen area, a bedroom, a bathroom and balcony.
The apartment with registration no. 0/11274 is located on first floor and consists of an open plan sitting , dining and kitchen area, three (3) bedrooms (of which the master is en-suite), a family bathroom and balconies.

Property Occupancy Status:
Apartment 001 Ground Floor 85 sq. m. 2 bedroom – Vacant
Apartment 002 Ground Floor 52 sq. m. 1 bedroom – Vacant
Apartment 003 Ground Floor 52 sq. m. 1 bedroom – Vacant
Apartment 101 First Floor 164 sq. m. 3 bedroom – Tenanted

Externally, the property is complemented by a communal yard and an uncovered parking area, providing convenient shared spaces for residents.

The asset is located approximately 3km from B7 motorway, approximately 2km from Emba community centre and approximately 5km from the beach.

GPS Coordinates: 34.81963115 32.42564579

Data Analytics

Mortgage Calculator






Total Monthly Payment:

Monthly Principal + Interest:

Loan-To-Value Ratio (LTV):

  • INDEX is the largest Real Estate marketplace in Cyprus. We strive to bring technology and data related to properties in one place.
  • Message Us

Support

© INDX Ltd. 2025 Registered in Cyprus with Registration number HE443934.

We are not a Real Estate agency and do not operate as an Agency.