Cyprus Real Estate Marketplace

19000m² Building for Sale in Limassol - Agios Ioannis

  • Pre-Owned
  • 19000m²
  • €95 000 000
Price per m²
€5000/m²
Title Transfer Fee
~€3,796,600
  • Ref. #: 130377
  • Energy Efficiency: A

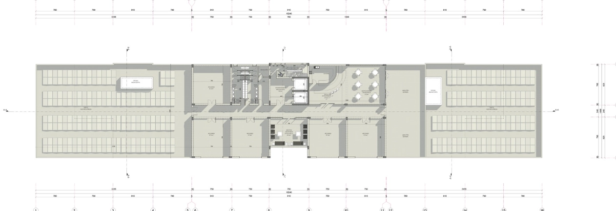
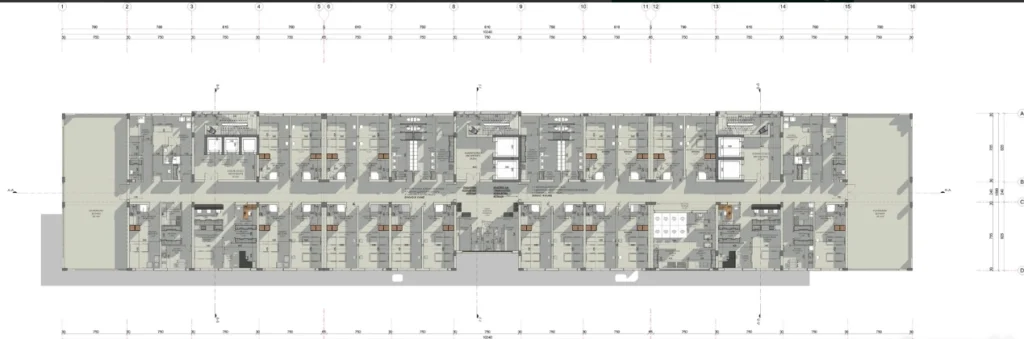
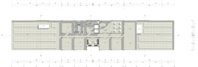
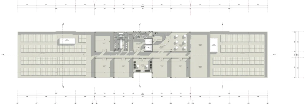
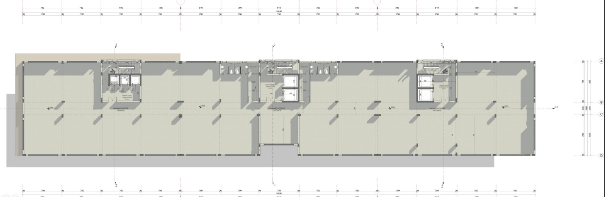
A private hospital complex under construction in Agios Ioannis, Limassol is for sale. Preliminary license for the construction of a hospital, 5-storey building, 19,000 m2 of covered areas, 6700-7700 m2 of customizable hospital areas, 220 above-ground and underground parking, kitchen and toilet (in accordance with state regulations), main kitchen and catering area, playground area, smoking area, roof garden (bar/ cafe), operational, technical characteristics: reinforced concrete according to drawings, concrete standards, norms and rules for the design of earthquake-resistant structures. The lowest strength of concrete is C30, the inner and outer walls are built of high-quality insulated clay bricks, plasters with fiber and latex, the total thickness of the outer walls is 30 cm, insulation made of neoprene 10 cm, full insulation, double glazed windows, raised floors, where necessary, high-quality ceramics. Wall tiles in the kitchen (between cabinets and kitchen counter) and bathroom walls (up to the height of the door), interior doors imported from Italy/European kitchen and plumbing fittings laufen and Grohe, electric intercoms/electric gates, energy efficiency “A”, Austrian photovoltaic system 3 kW, German insulation 10 cm (Clima Plus – Thrakon), German solar panels and Italian pressure pipe, Italian collectors and pipe-in-pipe system (Giacomini), Italian waterproofing system (Copernit), Belgium waterproof parquet with a guarantee (Quick-Step), insulated brick and windows, boundary walls and interior walls covered with fiber glue (Thrakon 410) and three layers of plaster, galvanized gates, individual facade HPL/stone/wood to choose from.

  • Minucipality: Limassol - Agios Ioannis
  • District: Limassol
  • Postal code: 4102

Data Analytics

Mortgage Calculator






Total Monthly Payment:

Monthly Principal + Interest:

Loan-To-Value Ratio (LTV):

  • INDEX is the largest Real Estate marketplace in Cyprus. We strive to bring technology and data related to properties in one place.
  • Message Us

Support

© INDX Ltd. 2025 Registered in Cyprus with Registration number HE443934.

We are not a Real Estate agency and do not operate as an Agency.