Cyprus Real Estate Marketplace

3 Bedroom House for Sale in Paphos - Agios Theodoros

  • 3
  • 2
  • 183m²
  • €545 000
  • ↑ €30 000 (5.83%)
Price per m²
€2978/m²
Title Transfer Fee
~€18,400

Price History

  • Ref. #: 1709
  • Plot area: 348m²
  • Parking: Yes, Covered  
  • Pool:Yes 
  • Energy Efficiency: A
  • Covered Veranda: 27 m²
  • Uncovered Veranda: 64 m²
  • Internal Area: 156 m²
  • Total Number of Floors: 2
  • Parking

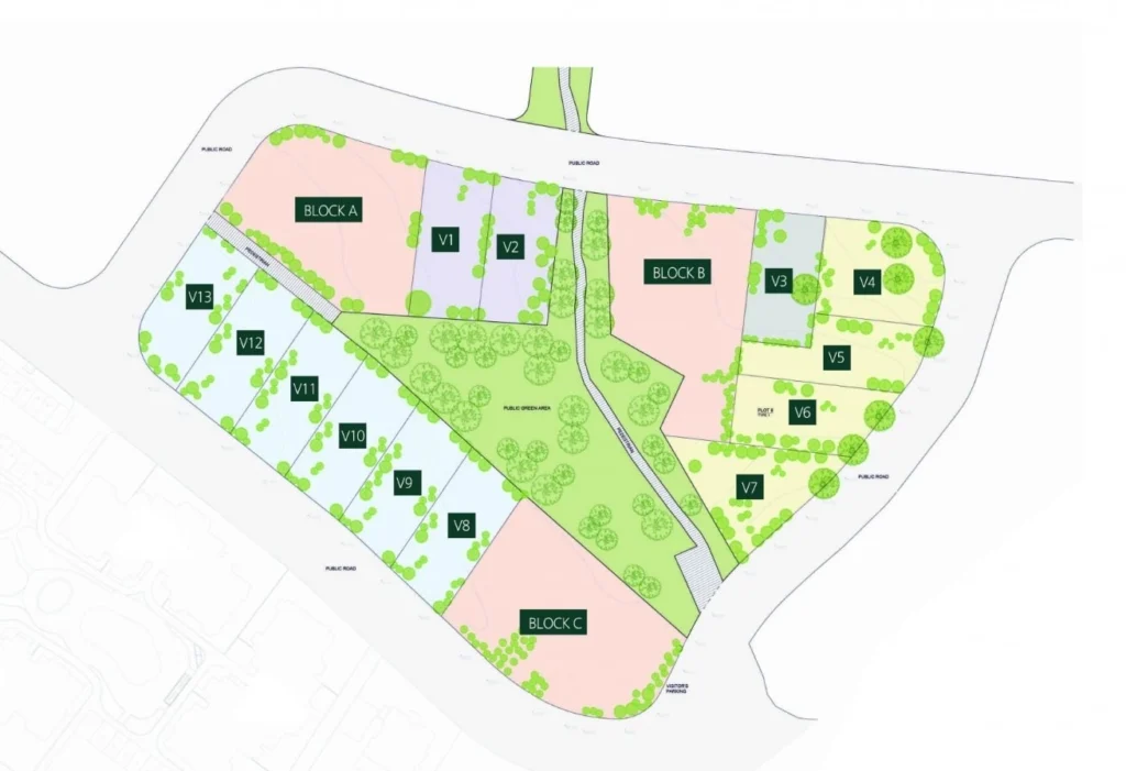
Villa No. 6 is a 3 bedroom villa for sale in Paphos. The villa is located at the heart of the city of Paphos close to all major amenities such as the Paphos Harbour and Tourist area and the Kings Avenue Mall. The villa enjoys comfortable living areas and balconies with wonderful surrounding views. The villa owners will be able to enjoy their private swimming pool. 

Residential development consists of 2, 3- and 4-bedroom contemporary apartments and villas for sale. The development is located in the heart of the city of Paphos close to all major amenities such as the Paphos Harbour and Tourist area and the Kings Avenue Mall. The properties enjoy comfortable living areas and balconies with great views of the Mediterranean Sea. The villa owners will be able to enjoy their private swimming pools while the apartment owners of Block A and Block B will be able to enjoy their large communal pools.

  • Address: Exo Vrisis, Baf 8047, Cyprus
  • Minucipality: Paphos - Agios Theodoros
  • District: Paphos
  • Postal code: 8047
  • Open in Maps →

Other Listings of This Property

No results available

Data Analytics

Mortgage Calculator






Total Monthly Payment:

Monthly Principal + Interest:

Loan-To-Value Ratio (LTV):

  • INDEX is the largest Real Estate marketplace in Cyprus. We strive to bring technology and data related to properties in one place.
  • Message Us

Support

© INDX Ltd. 2025 Registered in Cyprus with Registration number HE443934.

We are not a Real Estate agency and do not operate as an Agency.