- €565 000
- ↑ €20 000 (3.67%)
- 3
- 2
- A-VEN-3-001-10.2
No results available
Price History
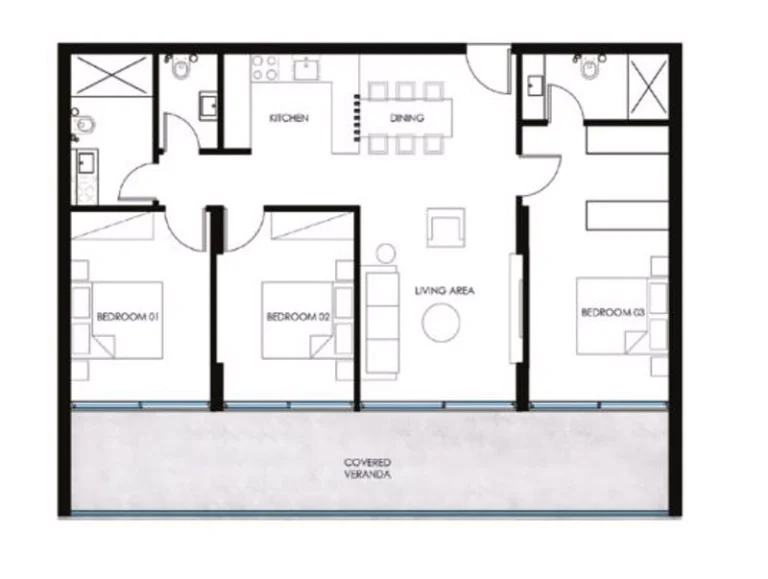
is located within a unique residential resort, just a short walk from the Paphos coastline and the blue waters of the Mediterranean Sea. These hilltop homes in Chloraka have a relaxing contemporary design with distinct Mediterranean features. All living areas have direct access to large verandas, terraces and gardens which surround the properties. All interior designs allow the sun and air to flow through.Venus Gardens is a luxury gated community that will boast large communal greens, two communal swimming pools, a clubhouse as well as a tennis court. In this special collection of exclusive homes, you will experience a mix of design and architecture with traditional features, comfort and construction into Mediterranean living. Mediterranean references to Cypriot stone villas, volumes, openings, large covered outdoor spaces, materials, stone, plaster, wood, tiled roofs, earthy colours, Mediterranean landscaped gardens.
No results available
Support
Information
Cookie Consent. We use cookies to improve your experience, analyze traffic, and personalize content. By clicking "Accept," you consent to our use of cookies. Cookie Policy Privacy Statement