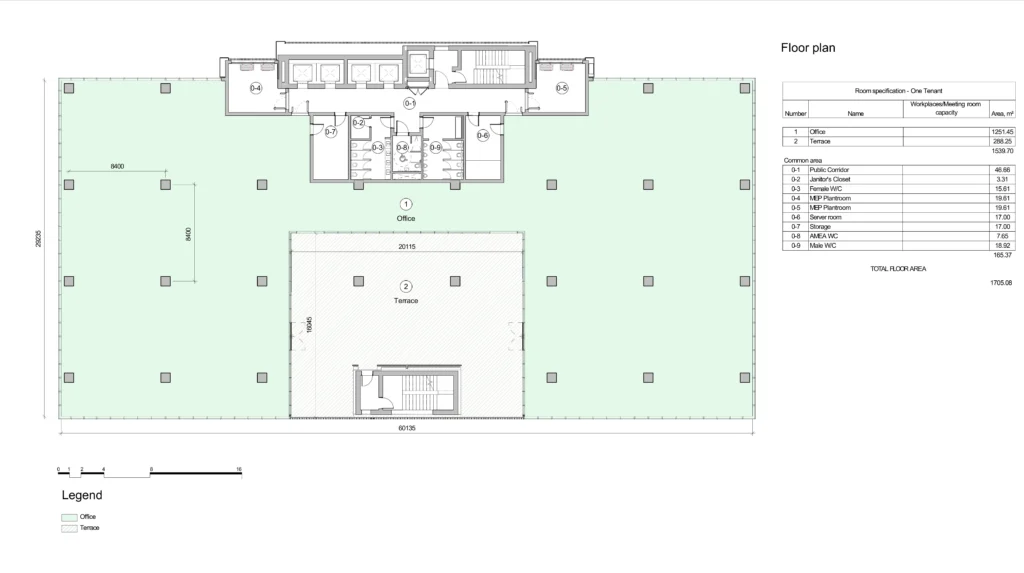
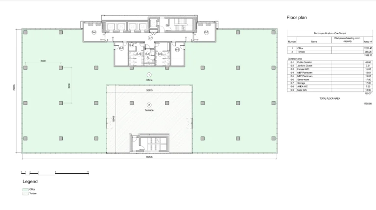
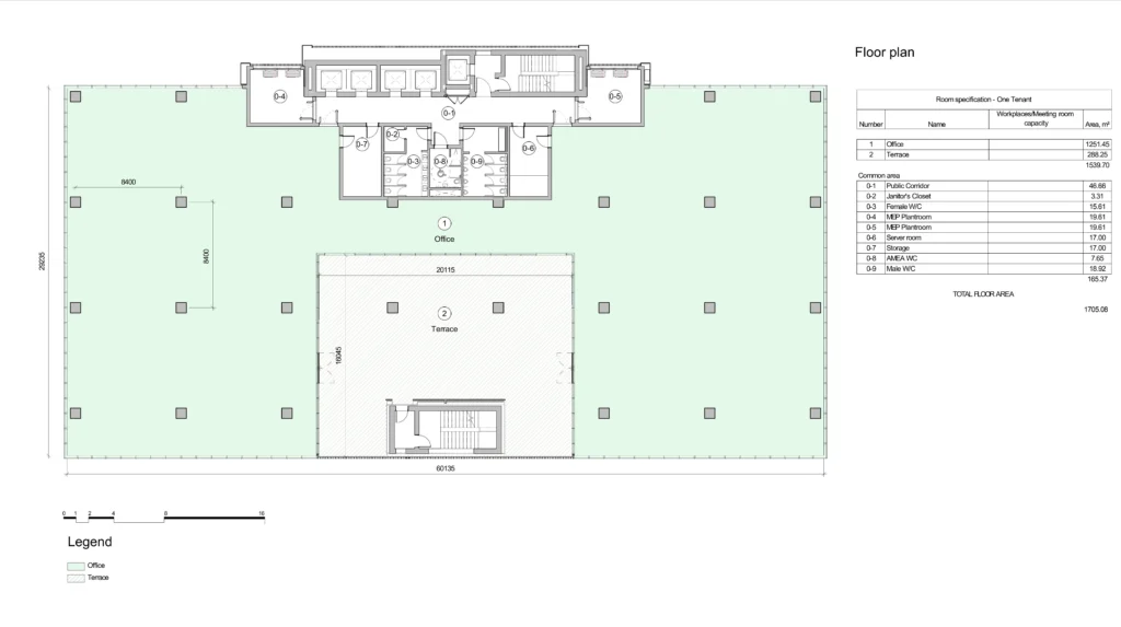
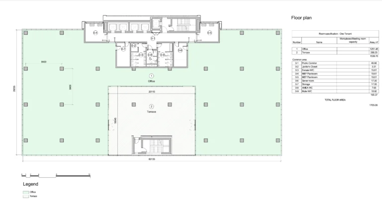
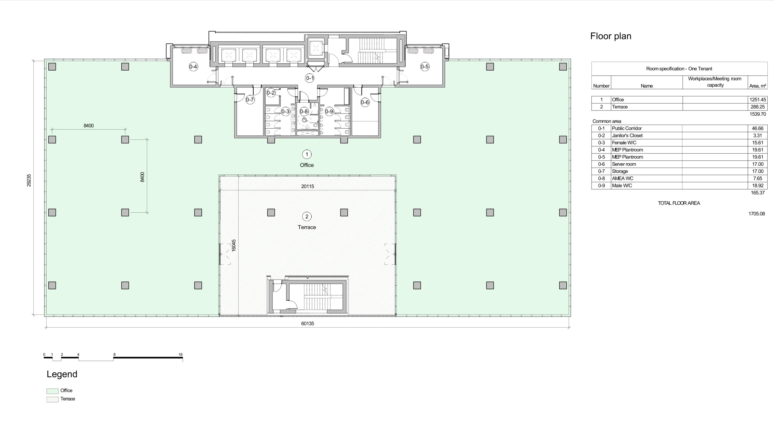
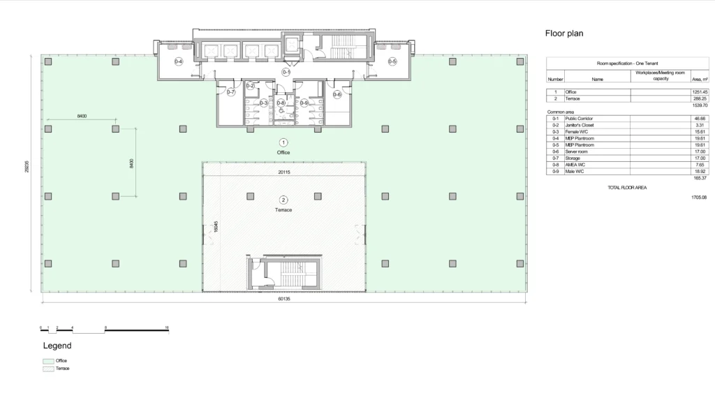
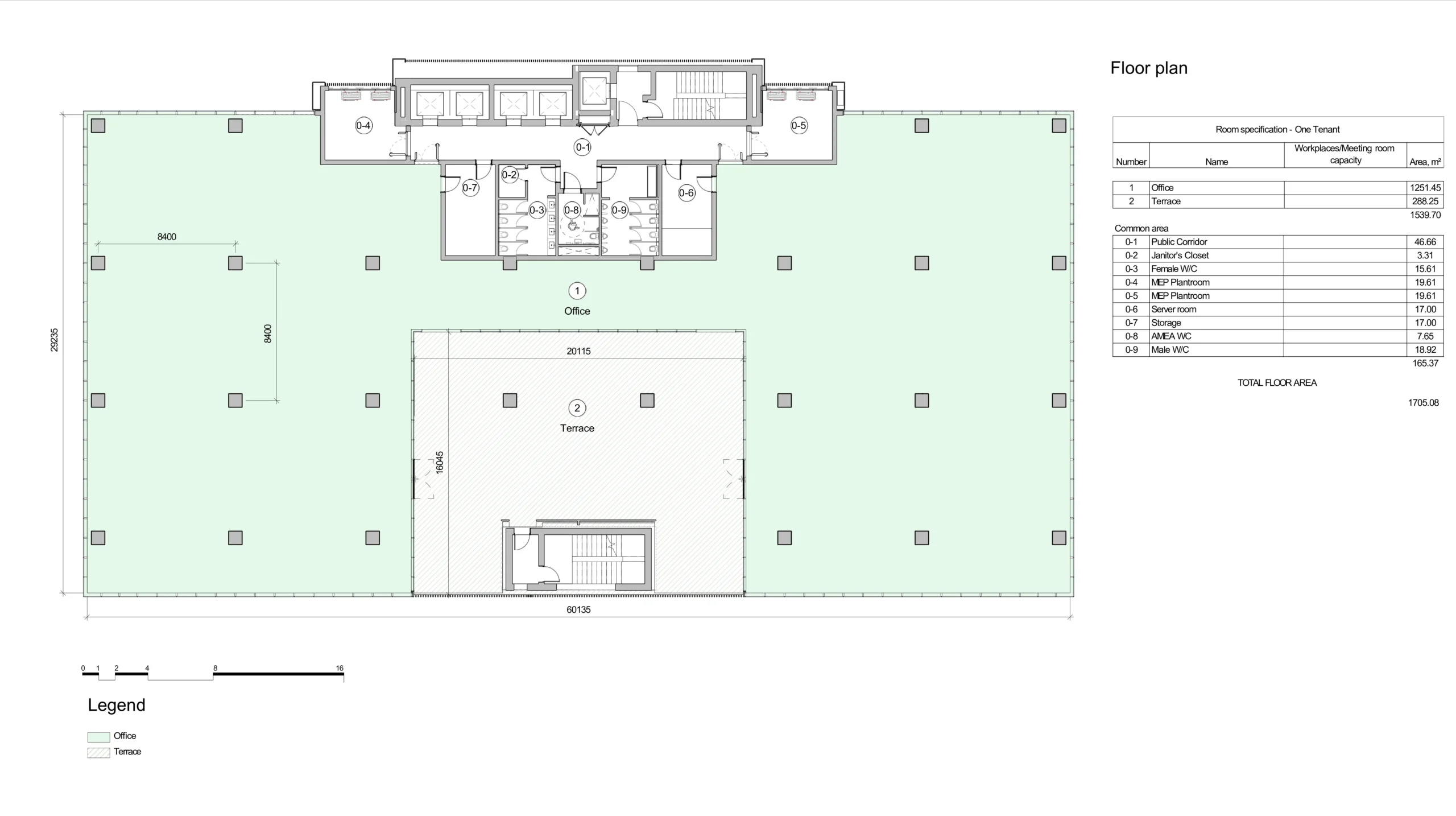
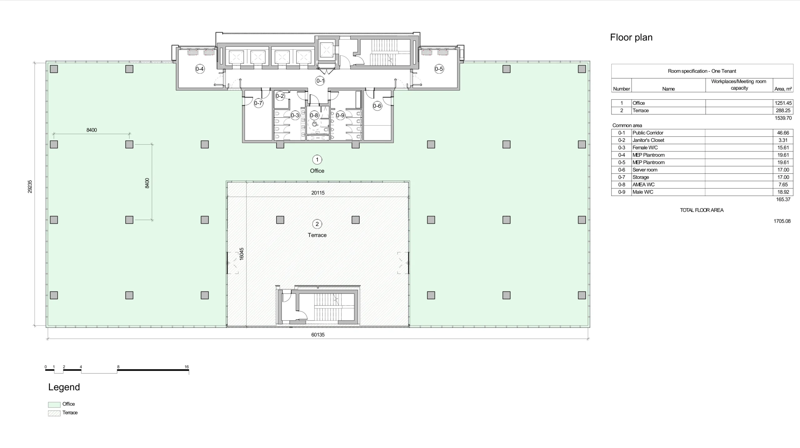
Experience a high-end, open-plan business environment in one of Cyprus’s most prestigious and accessible locations. This modern commercial building is the only one in the country offering such an extensive floor plate, purposefully designed to enhance employee productivity, comfort, and well-being.
Key Features:
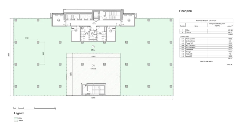
• Full-floor open-plan layout ideal for custom office configurations
• Exceptional parking capacity — 365 spaces (3× more than legally required), the largest of any office building in the region
• Highly efficient office design with no wasted corridor space
• Multi-functional veranda suitable for meetings, events, or breakout areas
• On-demand meeting rooms available within the building, reducing internal fit-out needs
• Premium infrastructure & technology supporting modern corporate requirements
• Community of leading, well-established tenants, promoting collaboration and professionalism
Located in a highly visible and prestigious area, this business centre offers unmatched accessibility, modern amenities, and a work environment tailored to support productivity and long-term employee satisfaction.
No results available
Support
Information
Cookie Consent. We use cookies to improve your experience, analyze traffic, and personalize content. By clicking "Accept," you consent to our use of cookies. Cookie Policy Privacy Statement