Cyprus Real Estate Marketplace

885m² Office for Rent in Limassol - Agios Athanasios

  • Posted: 5 months ago
  • Modified: 1 month ago
  • Under Construction
  • 885m²
€53 130/month
Price per m²
€60/m²
Common Expenses
Not Included
Utilities
Not Included
  • Property Reference Number: 10577 
  • Covered area, m²: 885 
  • Energy efficiency: 
  • Total number of floors: 
  • Elevator

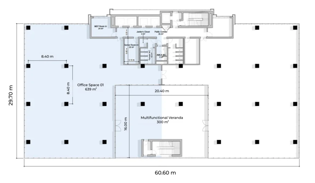
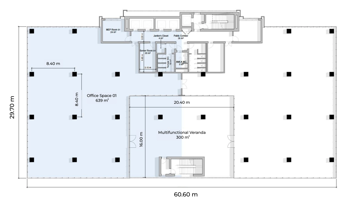
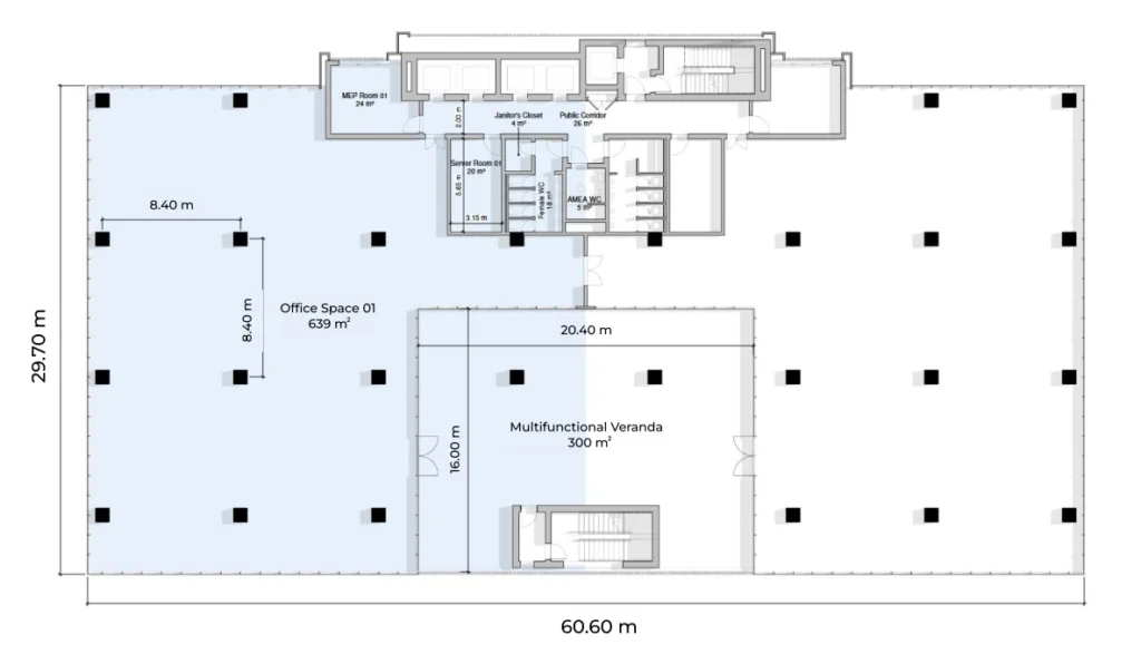
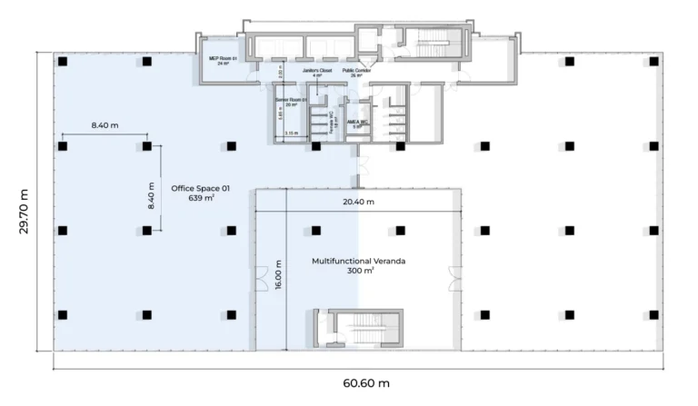
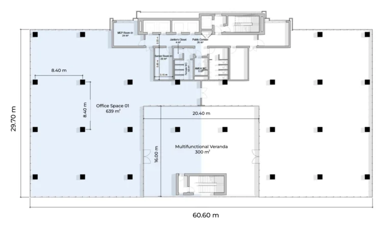
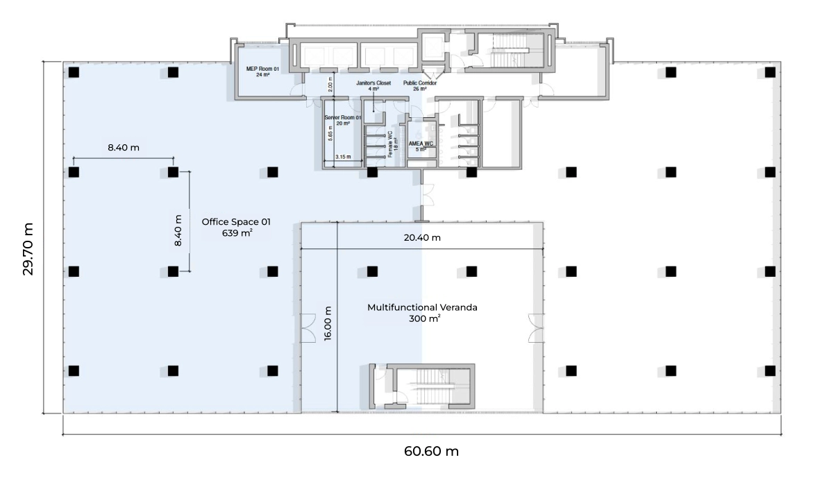
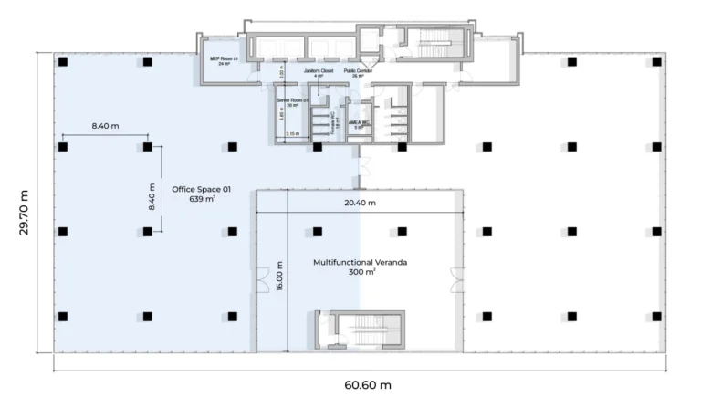
Experience a premium open-plan workspace in one of Cyprus’s most prestigious and accessible business locations. This modern commercial building stands out for its expansive floor plate — the only one of its kind in the country — designed to optimise productivity, comfort, and efficiency.

Key Features:

• Half-floor open-plan layout ideal for tailor-made office configurations
• Exceptional parking capacity — 365 spaces (3× more than required by law)
• Highly efficient design with no wasted corridor areas
• Multi-functional veranda perfect for meetings, events, or breakouts
• On-demand meeting rooms available within the building
• Advanced infrastructure & technology supporting modern corporate needs
• Professional tenant community of established, reputable companies

Located in a highly visible and well-connected area, this office offers a top-tier working environment with outstanding amenities — ideal for companies seeking a modern, efficient, and distinguished space.

  • Address: A1, Agios Athanasios 4107, Cyprus
  • Minucipality: Limassol - Agios Athanasios
  • District: Limassol
  • Postal code: 4107
  • Open in Maps →
€53 130/month
Price per m²
€60/m²
Common Expenses
Not Included
Utilities
Not Included
  • Agency
  • R.N.:1311 L.N.:347/E
0/5

0 of 5

Contact Seller Directly
Please enable JavaScript in your browser to complete this form.
Preferred method of communication

Similar to 885m² Office for Rent in Limassol - Agios Athanasios

  • INDEX is the largest Real Estate marketplace in Cyprus. We strive to bring technology and data related to properties in one place.
  • Message Us

Support

© INDX Ltd. 2025 Registered in Cyprus with Registration number HE443934.

We are not a Real Estate agency and do not operate as an Agency.