Cyprus Real Estate Marketplace

2 Bedroom Apartment for Sale in Limassol - Agia Fyla

  • 2
  • 3
  • Under Construction
  • 110m²
  • Sea view
  • €550 000
  • + VAT
  • ↑ €15 000 (2.8%)
Price per m²
€5000/m²
VAT
Not Included in Price
VAT for this property is €27,500 (Reduced 5% rate) or €104,500 (Full 19% rate). VAT usually is 19%. If it is your first purchase of property, you can have VAT reduced to 5% for the first 150sq.m. of the property.
Title Transfer Fee
No

Price History

  • Ref. #: 7057
  • Parking: Yes, Covered  
  • Energy Efficiency: A
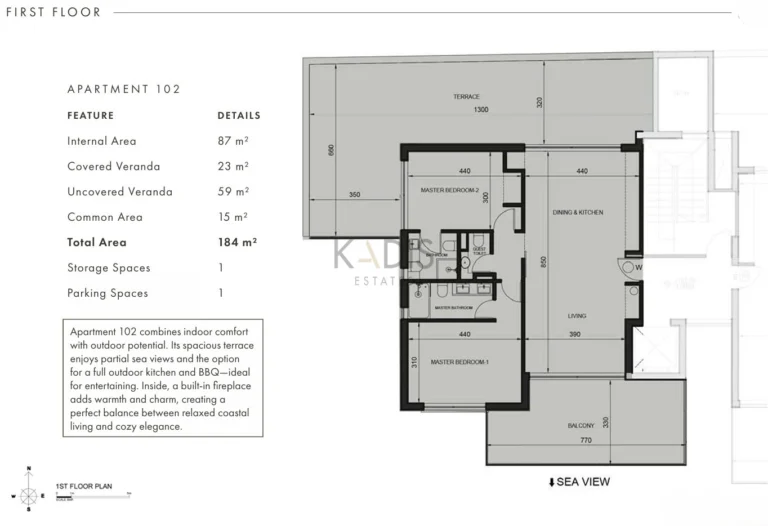
  • Covered Veranda: 23 m²
  • Uncovered Veranda: 59 m²
  • Internal Area: 87 m²
  • Floor Number: 1
  • Total Number of Floors: 3
  • Parking

Modern Two-Bedroom Apartment with Panoramic Sea and City Views – Limassol

Experience elevated living in this stylish two-bedroom apartment ideally located in one of Limassol’s most prestigious and convenient neighborhoods. With quick access to the highway and close proximity to schools, healthcare facilities, and shopping destinations, this home is perfectly situated for both comfort and convenience.

The apartment features a bright open-plan layout with expansive floor-to-ceiling windows that capture breathtaking views of the Mediterranean Sea and the cityscape. The spacious living area flows seamlessly into a modern kitchen and dining space, while two generously sized bedrooms—including a master suite—offer privacy and relaxation. A guest bathroom adds additional functionality.

High-end finishes and carefully selected materials enhance the contemporary design, while large covered verandas extend the living space outdoors, ideal for entertaining or unwinding. Covered parking and a private storage room are also included, ensuring every comfort is considered.

Whether as a primary residence or investment, this two-bedroom home offers exceptional quality and value in the heart of Limassol.

  • Address: P25G+3RQ Limassol, Cyprus
  • Minucipality: Limassol - Agia Fyla
  • District: Limassol
  • Open in Maps →
  • €550 000
  • + VAT
  • ↑ €15 000 (2.8%)
Price per m²
€5000/m²
VAT
Not Included in Price
VAT for this property is €27,500 (Reduced 5% rate) or €104,500 (Full 19% rate). VAT usually is 19%. If it is your first purchase of property, you can have VAT reduced to 5% for the first 150sq.m. of the property.
Title Transfer Fee
No

Price History

  • Agency
  • R.N.:229/E L.N.:1047
0/5

0 of 5

Contact Seller Directly
Please enable JavaScript in your browser to complete this form.
Preferred method of communication
  • Seriously interested in this property?

Get your property inspected on sight by our trusted and unbiased professionals who will give you full report of the property condition. (See sample report)

You can also get an instant property report based on the location of the property using historic and current market data. (See sample report)

Other Listings of This Property

Similar to 2 Bedroom Apartment for Sale in Limassol - Agia Fyla

Data Analytics

Mortgage Calculator






Total Monthly Payment:

Monthly Principal + Interest:

Loan-To-Value Ratio (LTV):

  • INDEX is the largest Real Estate marketplace in Cyprus. We strive to bring technology and data related to properties in one place.
  • Message Us

Support

© INDX Ltd. 2025 Registered in Cyprus with Registration number HE443934.

We are not a Real Estate agency and do not operate as an Agency.