- €155 000
- +VAT
- ↓ €5 000 (3.13%)
- €3039/m2
- 51m²
- 1
- 1
- Brand New
- Yes, Covered
- 51475
One Bedroom Apartment for sale in Mall area, Larnaca. Great location, as all amenities, such as Greek and English schools, major supermarkets, entertainment and sporting facilities, are within close proximity. Located in a lovely residential area of Larnaca within proximity to the New Metropolis Mall. There is easy access to major highways without getting delayed in any traffic. The lovely residential neighborhood is quiet and family orientated surrounded by large luxury houses and residential properties.
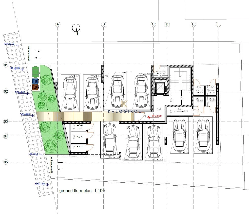
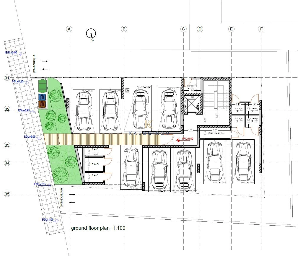
Second floor apartment for sale in New Mall area, Larnaca Town. It consists of an open plan kitchen, living, dining area, a main bathroom, one bedroom and covered balcony. The property has access to an allocated covered parking space and storage room.
The apartment is part of a contemporary apartment building. It boasts 8 one-, two-, three- bedroom apartments. Top floor apartments enjoy private roof gardens with lovely city views, while all units have exclusive right of use to one covered parking bay and storage room.
Extra: Provision A/C, Balcony, Covered Parking, Storage, Elevator
Get your property inspected on sight by our trusted and unbiased professionals who will give you full report of the property condition. (See sample report)
You can also get an instant property report based on the location of the property using historic and current market data. (See sample report)
No results available
Support
Information
Cookie Consent. We use cookies to improve your experience, analyze traffic, and personalize content. By clicking "Accept," you consent to our use of cookies. Cookie Policy Privacy Statement