- €259 000
- +VAT
- ↓ €8 000 (3%)
- €6317/m2
- 41m²
- 1
- Under Construction
- 2 / 6
- Yes, Covered
- 7758
Price History
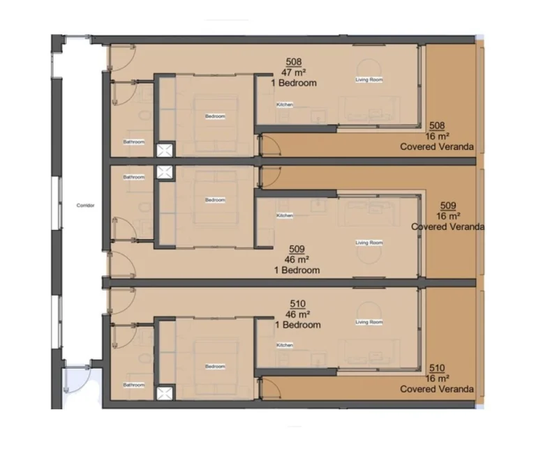
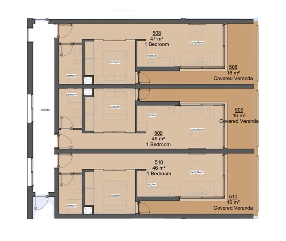
One-bedroom apartment 510, with a living area of 47 m², is located on the fifth floor of a six-storey building.
Welcome to the landmark residential development set in the very heart of Limassol’s historic center—just steps from Anexartisias Fashion Street and moments from the Old Port and Limassol Marina and just 600 meters distance to the seafront. This project redefines city living and presents what is arguably the most attractive real estate investment opportunity in central Limassol today.
Comprising 70 contemporary studio, 1-, and 2-bedroom apartments, each unit has been intelligently designed to cater to the demands of today’s urban lifestyle, offering functional layouts, modern aesthetics, and high-quality finishes and exceptional return on investment.
With direct proximity to top-tier amenities—including retail, fine dining, entertainment, and Limassol’s most wellknown fashion street— this residential development is uniquely positioned to attract both local and international tenants, making it an ideal high-yield rental investment.
Residents enjoy exclusive access to an array of lifestyle facilities, including:
• Fully equipped gym
• Indoor and outdoor lounges
• Rooftop swimming pool
• Barbecue area and panoramic rooftop bar overlooking the Old Port and Marina
Price History
Get your property inspected on sight by our trusted and unbiased professionals who will give you full report of the property condition. (See sample report)
You can also get an instant property report based on the location of the property using historic and current market data. (See sample report)
No results available
Support
Information
Cookie Consent. We use cookies to improve your experience, analyze traffic, and personalize content. By clicking "Accept," you consent to our use of cookies. Cookie Policy Privacy Statement