Cyprus Real Estate Marketplace

1 Bedroom Apartment for Sale in Limassol - Katholiki

  • 1
  • 1
  • Under Construction
  • 63m²
  • €414 000
  • + VAT
  • ↑ €33 000 (8.66%)
Price per m²
€6571/m²
VAT
Not Included in Price
VAT for this property is €20,700 (Reduced 5% rate) or €78,660 (Full 19% rate). VAT usually is 19%. If it is your first purchase of property, you can have VAT reduced to 5% for the first 150sq.m. of the property.
Title Transfer Fee
No

Price History

  • Ref. #: 7816
  • Parking: Yes, Covered  
  • Pool:Yes 
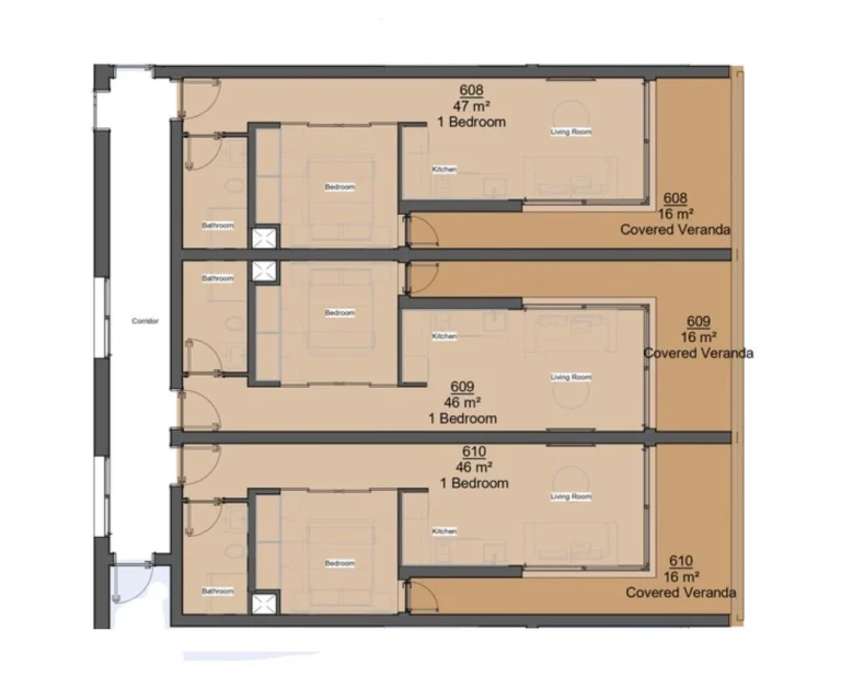
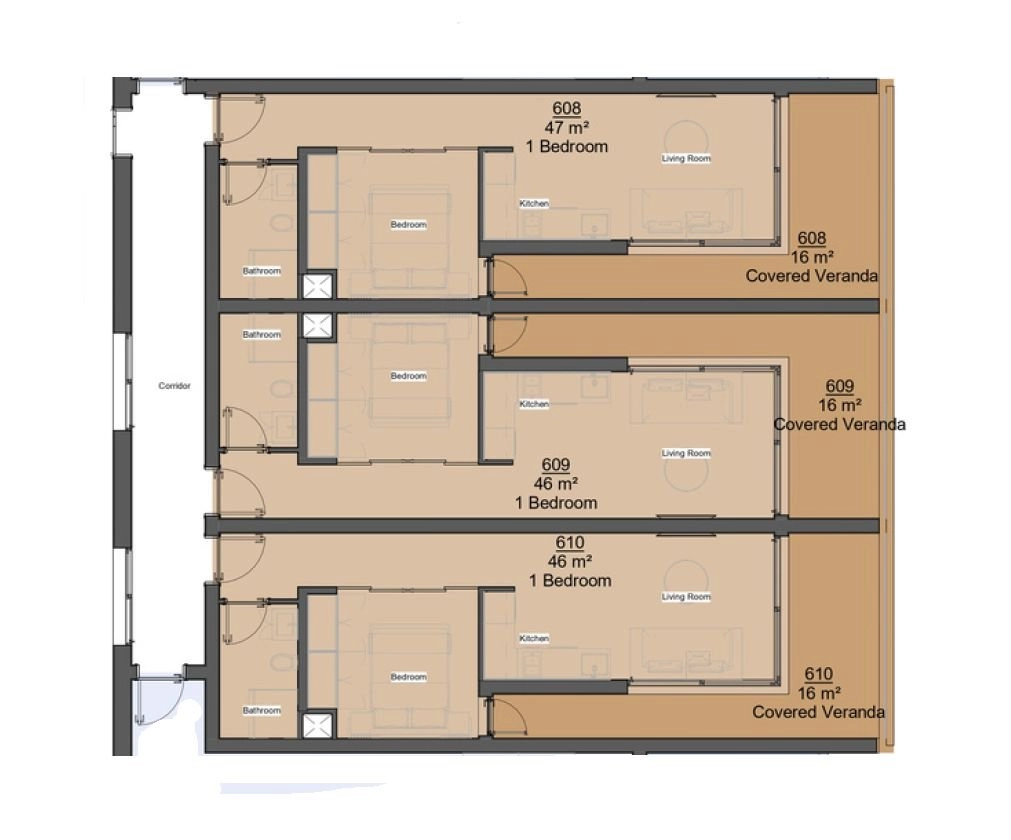
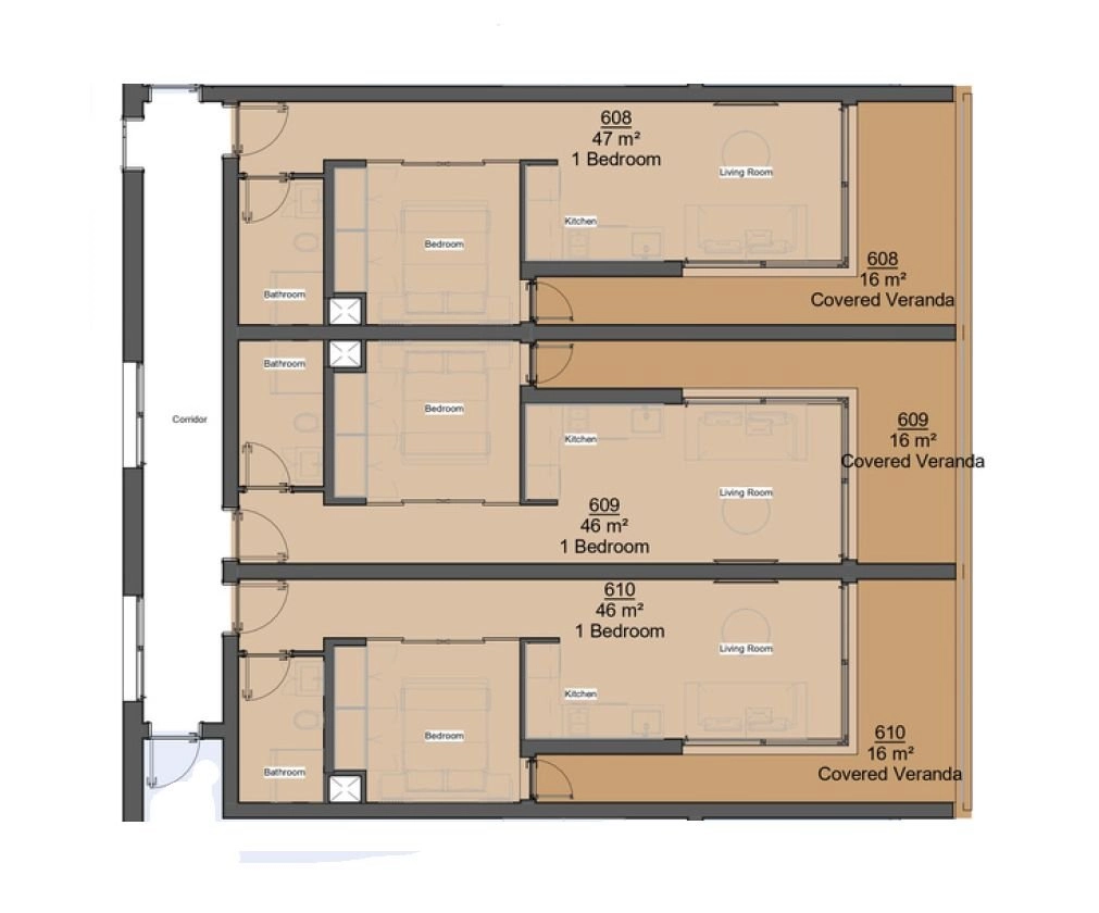
  • Covered Veranda: 16 m²
  • Internal Area: 47 m²
  • Floor Number: 6
  • Total Number of Floors: 6
  • Parking

One-bedroom apartment 610, with a living area of 47 m², is located on the sixth floor of a six-storey building.

Welcome to the landmark residential development set in the very heart of Limassol’s historic center—just steps from Anexartisias Fashion Street and moments from the Old Port and Limassol Marina and just 600 meters distance to the seafront. This project redefines city living and presents what is arguably the most attractive real estate investment opportunity in central Limassol today.

Comprising 70 contemporary studio, 1-, and 2-bedroom apartments, each unit has been intelligently designed to cater to the demands of today’s urban lifestyle, offering functional layouts, modern aesthetics, and high-quality finishes and exceptional return on investment.

With direct proximity to top-tier amenities—including retail, fine dining, entertainment, and Limassol’s most wellknown fashion street— this residential development is uniquely positioned to attract both local and international tenants, making it an ideal high-yield rental investment.

Residents enjoy exclusive access to an array of lifestyle facilities, including:
• Fully equipped gym
• Indoor and outdoor lounges
• Rooftop swimming pool
• Barbecue area and panoramic rooftop bar overlooking the Old Port and Marina

  • Address: Andrea Vlami 4, Lemesos 3041, Cyprus
  • Minucipality: Limassol - Katholiki
  • District: Limassol
  • Postal code: 3041
  • Open in Maps →
  • €414 000
  • + VAT
  • ↑ €33 000 (8.66%)
Price per m²
€6571/m²
VAT
Not Included in Price
VAT for this property is €20,700 (Reduced 5% rate) or €78,660 (Full 19% rate). VAT usually is 19%. If it is your first purchase of property, you can have VAT reduced to 5% for the first 150sq.m. of the property.
Title Transfer Fee
No

Price History

  • Agency
  • R.N.:1311 L.N.:347/E
0/5

0 of 5

Contact Seller Directly
Please enable JavaScript in your browser to complete this form.
Preferred method of communication
  • Seriously interested in this property?

Get your property inspected on sight by our trusted and unbiased professionals who will give you full report of the property condition. (See sample report)

You can also get an instant property report based on the location of the property using historic and current market data. (See sample report)

Other Listings of This Property

Similar to 1 Bedroom Apartment for Sale in Limassol - Katholiki

Data Analytics

Mortgage Calculator






Total Monthly Payment:

Monthly Principal + Interest:

Loan-To-Value Ratio (LTV):

  • INDEX is the largest Real Estate marketplace in Cyprus. We strive to bring technology and data related to properties in one place.
  • Message Us

Support

© INDX Ltd. 2025 Registered in Cyprus with Registration number HE443934.

We are not a Real Estate agency and do not operate as an Agency.