Cyprus Real Estate Marketplace

4 Bedroom House for Sale in Tsada, Paphos District

  • 4
  • 4
  • Brand New
  • 307m²
  • €2 970 000
  • + VAT
Price per m²
€9674/m²
VAT
Not Included in Price
VAT for this property is €361,140 (Reduced 5% rate) or €564,300 (Full 19% rate). VAT usually is 19%. If it is your first purchase of property, you can have VAT reduced to 5% for the first 150sq.m. of the property.
Title Transfer Fee
No
  • Ref. #: 4533
  • Plot area: 2569m²
  • Pool:Yes 
  • Heating: Yes, Autonomous Heating  
  • Furnishing: Unfurnished  
  • Air Conditioning: Yes

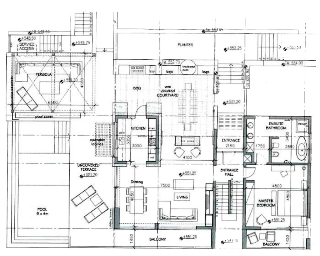
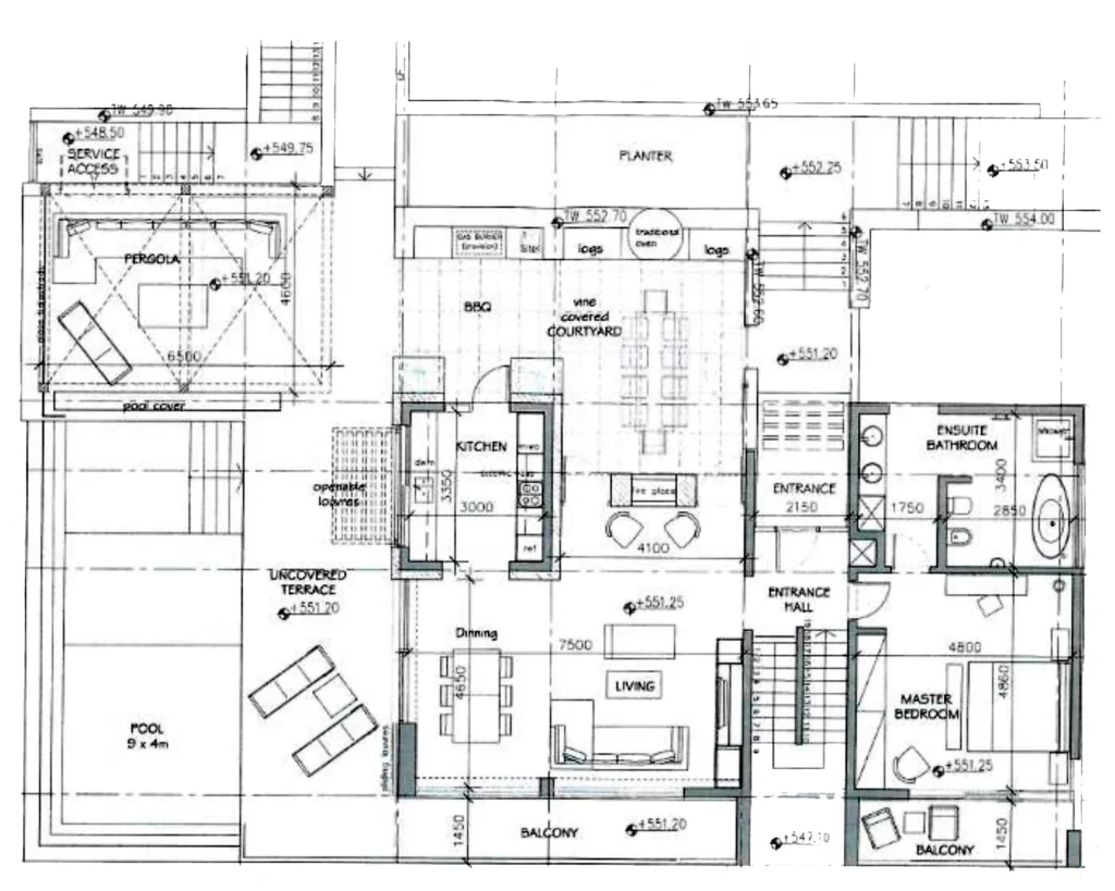
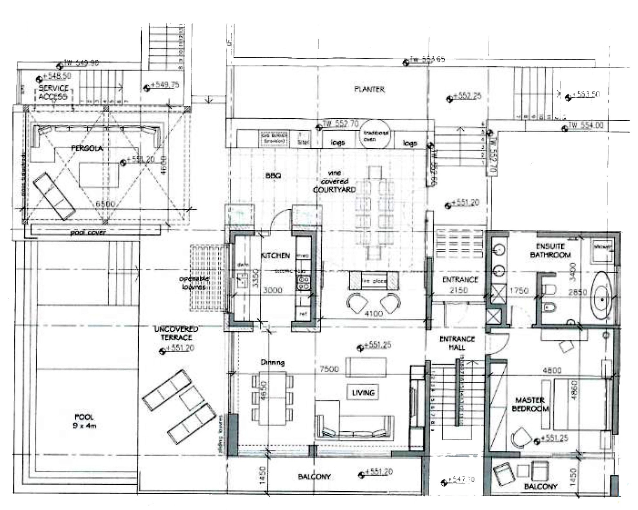
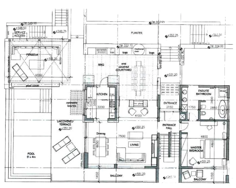
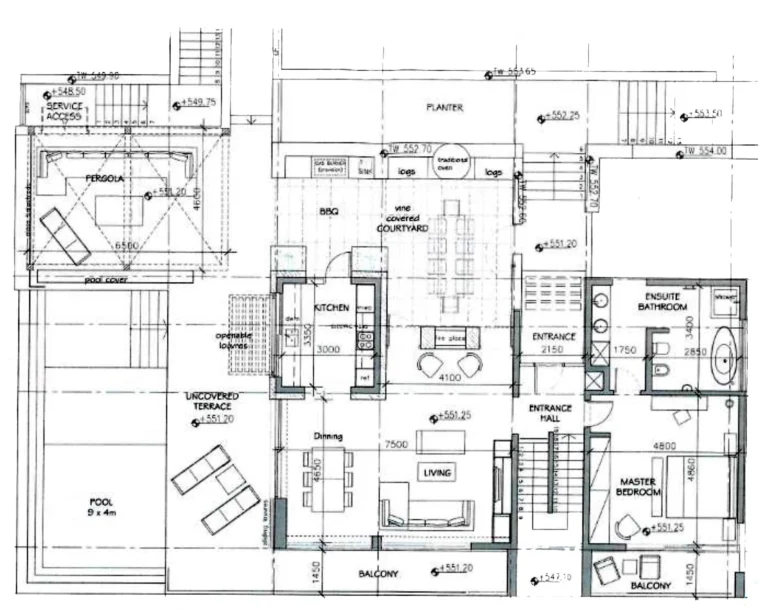
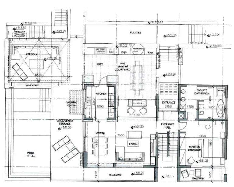
This unique 4 bedrooms villa in an exclusive golf resort in Pafos is waiting for its new owners.
Set on the biggest plot of the resort in the most private and exclusive sea view location, this property is characterised by unique custom made design, highest quality finishes and construction, spacious airy interiors, floor-to-ceiling windows, cosy internal courtyard, private panoramic infinity pool and outdoor dinning/BBQ area with wood oven.
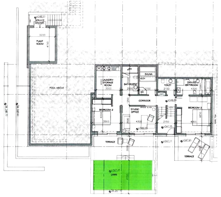
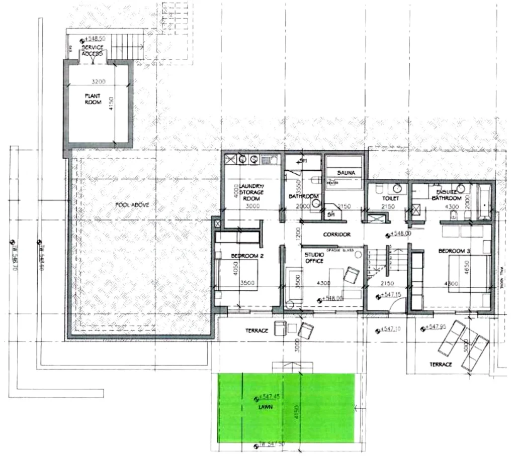
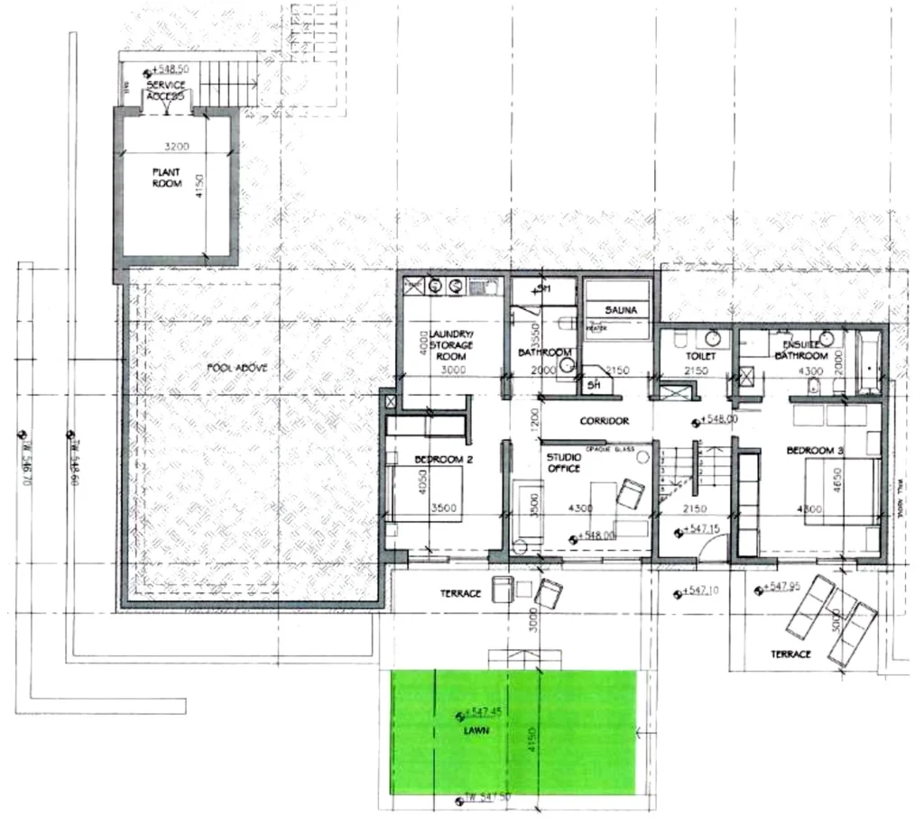
This home is extremely spacious and light with large, open-plan spaces and a kitchen that opens onto large patio and external social area. The master bedroom, infinity pool and dual-aspect living space are on the main level, while 3 guest bedrooms and a sauna are on the floor below.
The resort is famous for being located on a protected nature reserve with the cleanest air. It offers its own infrastructure, including a club house with a restaurant, a cafe, business facilities, pro shop etc, as well as a unique holistic wellness centre and a village square with more dining and shopping facilities.

  • €2 970 000
  • + VAT
Price per m²
€9674/m²
VAT
Not Included in Price
VAT for this property is €361,140 (Reduced 5% rate) or €564,300 (Full 19% rate). VAT usually is 19%. If it is your first purchase of property, you can have VAT reduced to 5% for the first 150sq.m. of the property.
Title Transfer Fee
No
  • Agency
  • R.N.:1013 L.N.:517/E
0/5

0 of 5

Contact Seller Directly
Please enable JavaScript in your browser to complete this form.
Preferred method of communication
  • Seriously interested in this property?

Get your property inspected on sight by our trusted and unbiased professionals who will give you full report of the property condition. (See sample report)

You can also get an instant property report based on the location of the property using historic and current market data. (See sample report)

Similar to 4 Bedroom House for Sale in Tsada, Paphos District

Data Analytics

Mortgage Calculator






Total Monthly Payment:

Monthly Principal + Interest:

Loan-To-Value Ratio (LTV):

  • INDEX is the largest Real Estate marketplace in Cyprus. We strive to bring technology and data related to properties in one place.
  • Message Us

Support

© INDX Ltd. 2025 Registered in Cyprus with Registration number HE443934.

We are not a Real Estate agency and do not operate as an Agency.