Cyprus Real Estate Marketplace

2 Bedroom Apartment for Sale in Potamos Germasogeias, Limassol District

  • ID: 8905325
  • Posted: 5 months ago
  • Modified: 1 month ago
  • Views: 8
  • 2
  • 2
  • Under Construction
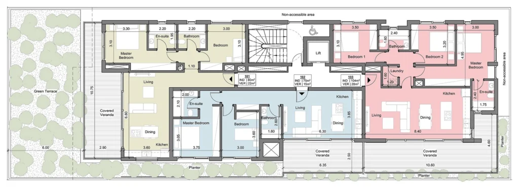
  • 102m²
  • €660 000
  • + VAT
Price per m²
€6471/m²
VAT
Not Included in Price
VAT for this property is €33,000 (Reduced 5% rate) or €125,400 (Full 19% rate). VAT usually is 19%. If it is your first purchase of property, you can have VAT reduced to 5% for the first 150sq.m. of the property.
Title Transfer Fee
No
  • Ref. #: 12738
  • Parking: Yes, Covered  
  • Pool:Yes 
  • Energy Efficiency: A
  • Covered Veranda: 22 m²
  • Uncovered Veranda: 4 m²
  • Internal Area: 80 m²
  • Heating: Yes, Autonomous Heating  
  • Floor Number: 1
  • Total Number of Floors: 4
  • Furnishing: Unfurnished  
  • Air Conditioning: Yes
  • Parking

Tucked away in the prestigious Germasogeia area of Limassol, this boutique residential development redefines elegant urban living. Comprising only twelve meticulously designed apartments, the project offers a rare blend of privacy, comfort, and contemporary luxury in one of the city’s most desirable neighborhoods.
With lush surroundings and proximity to high-end restaurants, chic cafés, and the sparkling Mediterranean, residents enjoy a tranquil lifestyle without sacrificing convenience. Just a short walk or drive connects you to elite schools, renowned supermarkets, pharmacies, and the beach.
Each apartment is crafted with premium materials and boasts high ceilings, floor-to-ceiling thermal sliding doors, and top-tier European sanitary ware. A central VRV air-conditioning system and energy-efficient technologies like photovoltaic panels and heat pump boilers ensure year-round comfort and sustainability.
Residents also benefit from exclusive shared amenities, including a swimming pool, sauna, fully equipped gym, and a dedicated study room for remote work. Secure parking with face-recognition access and EV charging provisions complete the offering.
This is not just a home—it’s a modern sanctuary for those who value refined living in a vibrant, cosmopolitan setting.

  • €660 000
  • + VAT
Price per m²
€6471/m²
VAT
Not Included in Price
VAT for this property is €33,000 (Reduced 5% rate) or €125,400 (Full 19% rate). VAT usually is 19%. If it is your first purchase of property, you can have VAT reduced to 5% for the first 150sq.m. of the property.
Title Transfer Fee
No
  • Agency
  • R.N.:1013 L.N.:517/E
0/5

0 of 5

Contact Seller Directly
Please enable JavaScript in your browser to complete this form.
Preferred method of communication
  • Seriously interested in this property?

Get your property inspected on sight by our trusted and unbiased professionals who will give you full report of the property condition. (See sample report)

You can also get an instant property report based on the location of the property using historic and current market data. (See sample report)

Other Listings of This Property

  • €615 000
  • +VAT
  •   €6833/m2

Similar to 2 Bedroom Apartment for Sale in Potamos Germasogeias, Limassol District

Data Analytics

Mortgage Calculator






Total Monthly Payment:

Monthly Principal + Interest:

Loan-To-Value Ratio (LTV):

  • INDEX is the largest Real Estate marketplace in Cyprus. We strive to bring technology and data related to properties in one place.
  • Message Us

Support

© INDX Ltd. 2025 Registered in Cyprus with Registration number HE443934.

We are not a Real Estate agency and do not operate as an Agency.