Cyprus Real Estate Marketplace

242m² Office for Rent in Limassol District

  • Posted: 5 months ago
  • Modified: 1 day ago
  • Under Construction
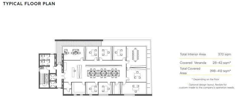
  • 242m²
  • 2026
€7 600/month
Price per m²
€31/m²
Common Expenses
Not Included
Utilities
Not Included
  • Property Reference Number: 241026 
  • Construction year: 2026
  • Covered area, m²: 242 
  • Energy efficiency: 
  • Covered veranda, m²:  42 
  • Parking: Yes, Covered  
  • Parking

Modern and well-maintained office located in the Polemidia area with easy access to the highway and main roads. Bright open-plan space with the option to partition, suitable for various business uses. Features include air conditioning, private parking, and readiness for high-speed internet.

Close to banks, cafes, and other amenities. Ideal for companies seeking a convenient and professional location.

  • District: Limassol
  • Postal code: 4145
€7 600/month
Price per m²
€31/m²
Common Expenses
Not Included
Utilities
Not Included
  • Agency
  • R.N.:229/E L.N.:1047
0/5

0 of 5

Contact Seller Directly
Please enable JavaScript in your browser to complete this form.
Preferred method of communication

Similar to 242m² Office for Rent in Limassol District

  • INDEX is the largest Real Estate marketplace in Cyprus. We strive to bring technology and data related to properties in one place.
  • Message Us

Support

© INDX Ltd. 2025 Registered in Cyprus with Registration number HE443934.

We are not a Real Estate agency and do not operate as an Agency.