Cyprus Real Estate Marketplace

2 Bedroom Apartment for Sale in Kapparis, Famagusta District

  • 2
  • 2
  • Brand New
  • 84m²
  • €305 000
  • + VAT
Price per m²
€3631/m²
VAT
Not Included in Price
VAT for this property is €15,250 (Reduced 5% rate) or €57,950 (Full 19% rate). VAT usually is 19%. If it is your first purchase of property, you can have VAT reduced to 5% for the first 150sq.m. of the property.
Title Transfer Fee
No
  • Ref. #: 53974
  • Parking: Yes, Covered  
  • Pool:Yes 
  • Air Conditioning: Yes
  • Balcony

Amazing, Two Bedroom apartment for sale in Kapparis area, Famagusta. Nestled in the year-round resort neighborhood of Kapparis in northern Protaras, the complex is perfectly situated to have close access to all amenities. Especially popular for families, Kapparis has 6 beautiful cove beaches, each protected with natural stone formations. As a residential tourist area, restaurants, shops, and entertainment is available all year and can be reached by foot in only a few minutes. Positioned at the juncture of the main road to downtown Protaras and the road to the municipality center of Paralimni, Kapparis is a great location to quickly and easily reach the entirety of east Cyprus.

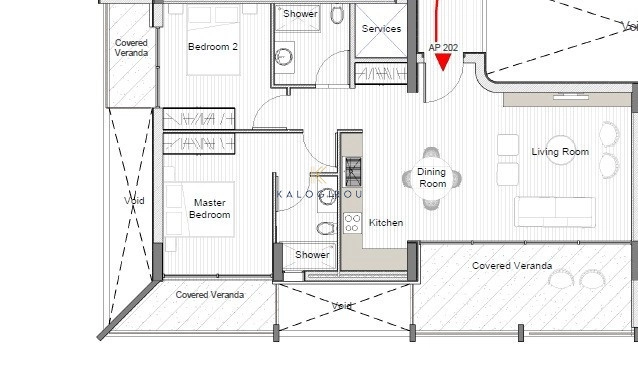
Apartment for sale in Kapparis area. The apartment is situated on the second floor and it consists of an open plan kitchen with living room and dining area, two bedrooms, en – suite shower with W/C in the master bedroom and one main shower with W/C.
The property has 84sq.m of internal covered area, 26sq.m of covered veranda. The property also benefits a communal swimming pool and a covered parking area.
The project consists of two blocks of apartments, with 36 apartments in total. The development features a combination of one- and two-bedroom apartments, thoughtfully designed to make the most of natural light while blending comfort with elegance. Each unit offers an open-plan living and kitchen area, spacious covered verandas, and contemporary high-quality finishes. Residents enjoy access to a beautifully landscaped outdoor area with a swimming pool, sun deck, and secure parking — all within a peaceful neighborhood ideal for both families and guests seeking relaxation

Extra: Uncovered Parking, Communal Swimming Pool, Provision A/C, Covered Veranda, Covered Parking

  • €305 000
  • + VAT
Price per m²
€3631/m²
VAT
Not Included in Price
VAT for this property is €15,250 (Reduced 5% rate) or €57,950 (Full 19% rate). VAT usually is 19%. If it is your first purchase of property, you can have VAT reduced to 5% for the first 150sq.m. of the property.
Title Transfer Fee
No
  • Agency
  • R.N.:1104 L.N.:569/E
0/5

0 of 5

Contact Seller Directly
Please enable JavaScript in your browser to complete this form.
Preferred method of communication
  • Seriously interested in this property?

Get your property inspected on sight by our trusted and unbiased professionals who will give you full report of the property condition. (See sample report)

You can also get an instant property report based on the location of the property using historic and current market data. (See sample report)

Other Listings of This Property

Similar to 2 Bedroom Apartment for Sale in Kapparis, Famagusta District

Data Analytics

Mortgage Calculator






Total Monthly Payment:

Monthly Principal + Interest:

Loan-To-Value Ratio (LTV):

  • INDEX is the largest Real Estate marketplace in Cyprus. We strive to bring technology and data related to properties in one place.
  • Message Us

Support

© INDX Ltd. 2025 Registered in Cyprus with Registration number HE443934.

We are not a Real Estate agency and do not operate as an Agency.