- €350 000
-
- €3365/m2
- 104m²
- 2
- 2
- 1 / 3
- Yes, Covered
- 243442
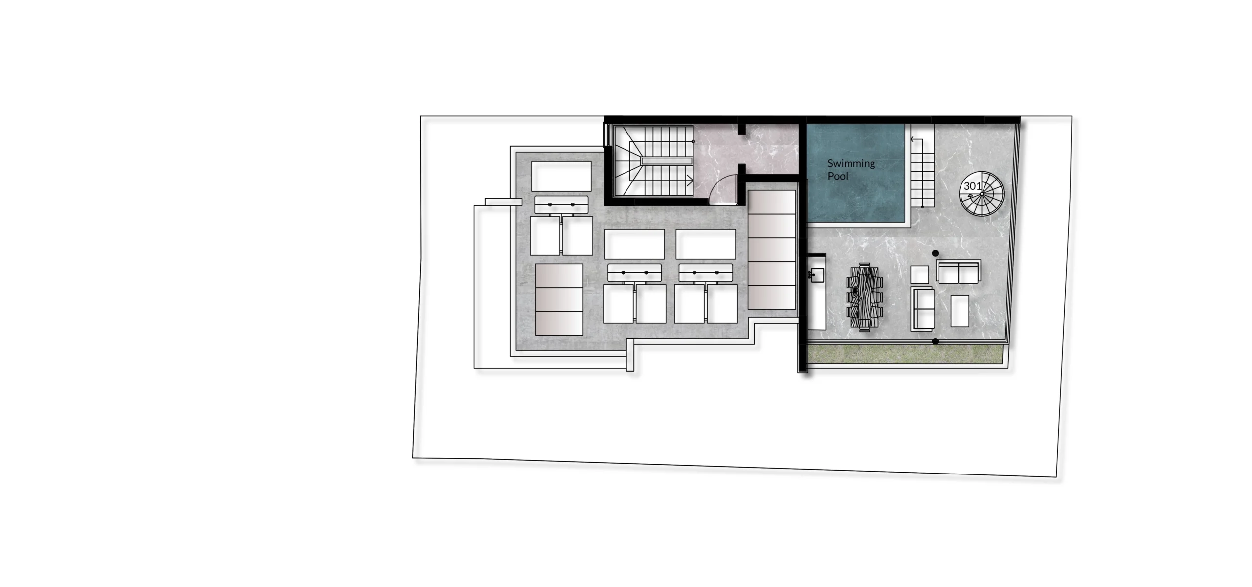
This exclusive three-bedroom penthouse is part of a boutique residential building in the heart of Limassol, offering a rare blend of privacy, modern design, and prime urban convenience.
Occupying the entire top floor, the penthouse provides a unique sense of exclusivity within a low-density building of just three residences. Designed with contemporary aesthetics and functionality in mind, it features spacious interiors, abundant natural light, and a seamless open-plan layout ideal for modern living.
A standout feature of this property is the private roof garden with swimming pool, creating an exceptional outdoor retreat in the city center—perfect for relaxing, entertaining, and enjoying the Mediterranean lifestyle in complete privacy.
Key Features:
• Three spacious bedrooms
• Open-plan living and dining area
• Modern kitchen with high-quality finishes
• Private roof garden
• Private swimming pool
• Bright interiors with large windows
• One apartment per floor for maximum privacy
Location Benefits:
• Prime city center location
• Walking distance to shops, cafés, restaurants, and amenities
• Easy access to main roads and all areas of Limassol
This penthouse is an outstanding choice for luxury living or investment, combining exclusivity, premium features, and a central location in one of Limassol’s most desirable urban settings.
Get your property inspected on sight by our trusted and unbiased professionals who will give you full report of the property condition. (See sample report)
You can also get an instant property report based on the location of the property using historic and current market data. (See sample report)
No results available
Support
Information
Cookie Consent. We use cookies to improve your experience, analyze traffic, and personalize content. By clicking "Accept," you consent to our use of cookies. Cookie Policy Privacy Statement