Cyprus Real Estate Marketplace

3 Bedroom House for Sale in Tombs Of the Kings, Paphos District

  • 3
  • 2
  • 180m²
  • €770 000
  • ↑ €30 000 (4.05%)
Price per m²
€4278/m²
Title Transfer Fee
~€27,400

Price History

  • Ref. #: 7162
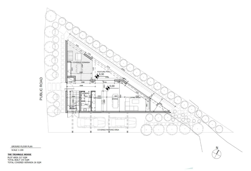
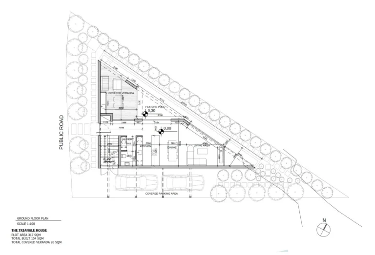
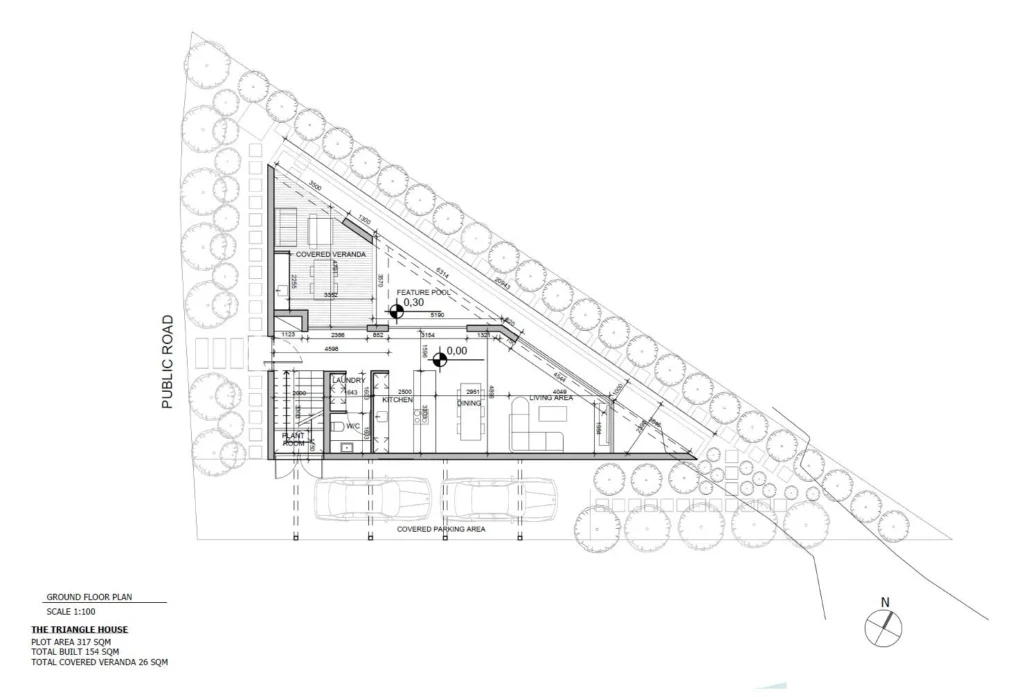
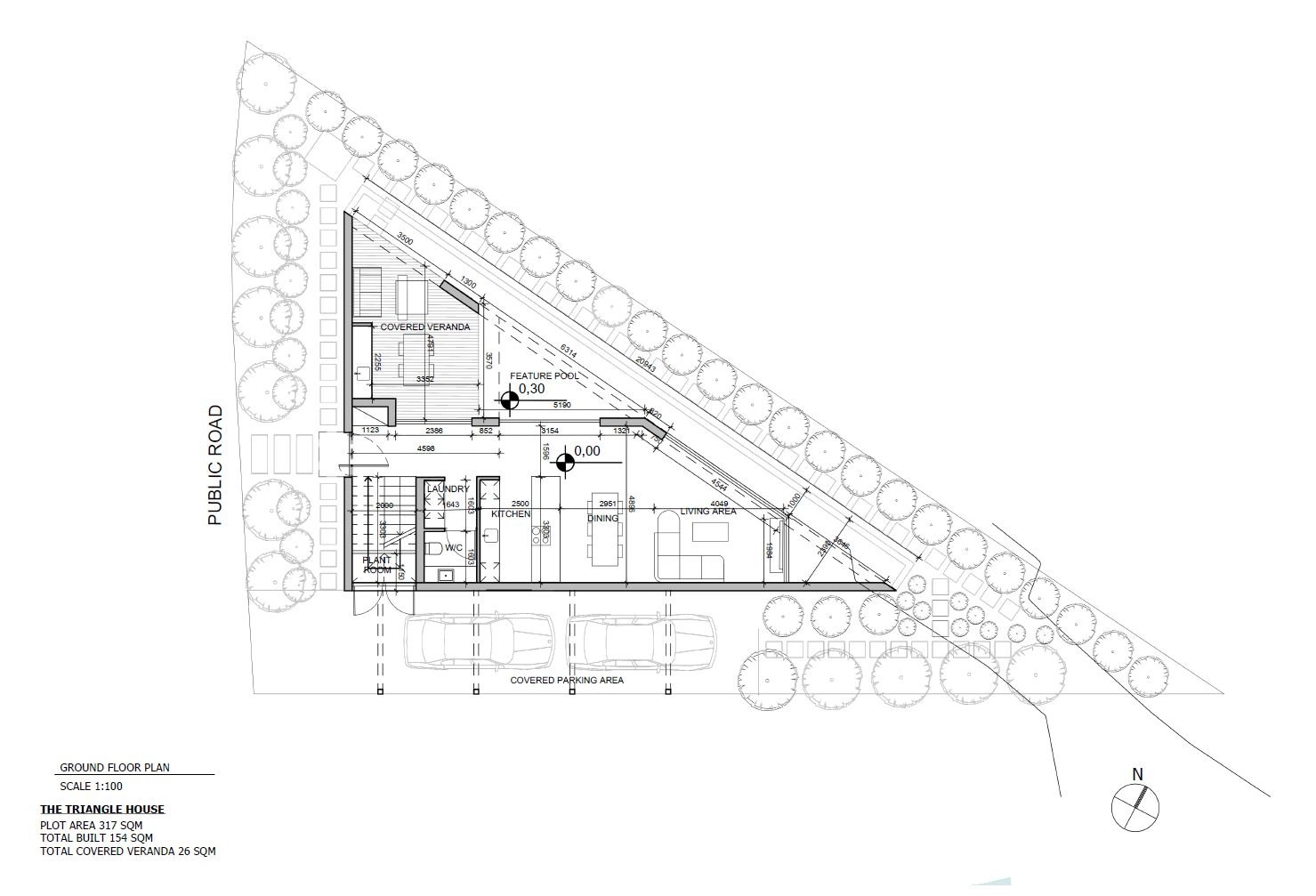
  • Plot area: 317m²
  • Pool:Yes 
  • Energy Efficiency: A
  • Covered Veranda: 26 m²
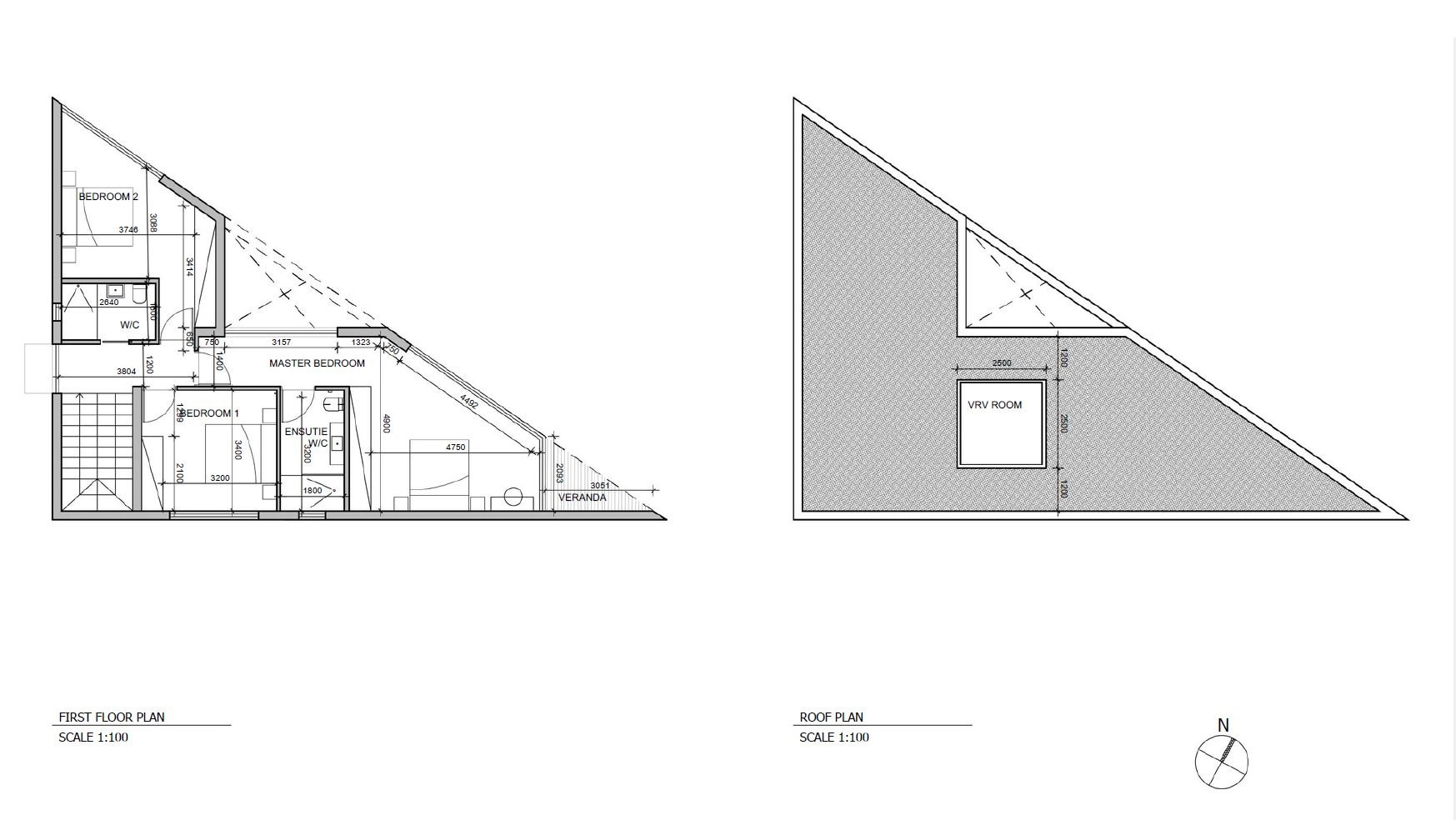
  • Internal Area: 154 m²
  • Heating: Yes, Underfloor Heating  
  • Safety and Security: Alarm

This is a striking three-bedroom luxury villa located in the prestigious Tombs of the Kings area. With its iconic triangular architecture and top-tier specifications, this villa redefines modern coastal living.

Boasting expansive open-plan interiors and a bold geometric design, this one-of-a-kind property offers both architectural brilliance and everyday comfort. Just a short stroll from premier amenities — including shops, fine dining, private schools, and the renowned Venus Beach — this luxury villa seamlessly blends convenience with elegance.

The ground floor features a spacious living and dining area, a sleek and modern kitchen, a guest WC, and a separate utility room. A standout feature is the stunning pool, which extends gracefully from the covered veranda to the living space, creating a seamless indoor-outdoor experience.

Upstairs, you’ll find two generously sized bedrooms sharing a bathroom, including a luxurious master bedroom with en-suite facilities.

The project specification encompasses the following features, all of which are included in the price:
● Underfloor heating with water and separate zones in each floor.
● VRV cooling system, offering efficient and customizable climate control
● High ceilings 3.10m and high doors 2.40 m in all rooms
● Photovoltaic system 5.2K with solar panels
● Swimming pool included
● Full thermal insulation, Energy-efficient slimline aluminum ensuring Energy Efficiency Category A
● Security system with alarm and CCTV with 4 cameras
● Water pressure system, and water filter under kitchen cabinets
● Bathrooms equipped with convenient walk-in showers, safety glass, and wall-mounted toilets
● Private parking for 2 cars with electric gates and provision for electric car charger
● Barbeque area at kitchen level featuring space for outdoor entertainment
● Storage and plant room

Completion Date: 24 months from signing

  • Address: Antoni Azina, Paphos 8015, Cyprus
  • Minucipality: Tombs Of the Kings
  • District: Paphos
  • Postal code: 8015
  • Open in Maps →
  • €770 000
  • ↑ €30 000 (4.05%)
Price per m²
€4278/m²
Title Transfer Fee
~€27,400

Price History

  • Agency
  • R.N.:1311 L.N.:347/E
0/5

0 of 5

Contact Seller Directly
Please enable JavaScript in your browser to complete this form.
Preferred method of communication
  • Seriously interested in this property?

Get your property inspected on sight by our trusted and unbiased professionals who will give you full report of the property condition. (See sample report)

You can also get an instant property report based on the location of the property using historic and current market data. (See sample report)

Other Listings of This Property

No results available

Similar to 3 Bedroom House for Sale in Tombs Of the Kings, Paphos District

Data Analytics

Mortgage Calculator






Total Monthly Payment:

Monthly Principal + Interest:

Loan-To-Value Ratio (LTV):

  • INDEX is the largest Real Estate marketplace in Cyprus. We strive to bring technology and data related to properties in one place.
  • Message Us

Support

© INDX Ltd. 2025 Registered in Cyprus with Registration number HE443934.

We are not a Real Estate agency and do not operate as an Agency.