Cyprus Real Estate Marketplace

6+ Bedroom House for Sale in Mouttagiaka, Limassol District

  • 6+
  • 5+
  • Under Construction
  • 446m²
  • €4 300 000
  • + VAT
Price per m²
€9641/m²
VAT
Not Included in Price
VAT for this property is €614,534 (Reduced 5% rate) or €817,000 (Full 19% rate). VAT usually is 19%. If it is your first purchase of property, you can have VAT reduced to 5% for the first 150sq.m. of the property.
Title Transfer Fee
No
  • Ref. #: 10782
  • Plot area: 907m²
  • Pool:Yes 
  • Energy Efficiency: A
  • Covered Veranda: 46 m²
  • Uncovered Veranda: 197 m²
  • Internal Area: 400 m²
  • Heating: Yes, Underfloor Heating  
  • Furnishing: Unfurnished  
  • Air Conditioning: Yes
  • Safety and Security: Smart home
  • Fireplace

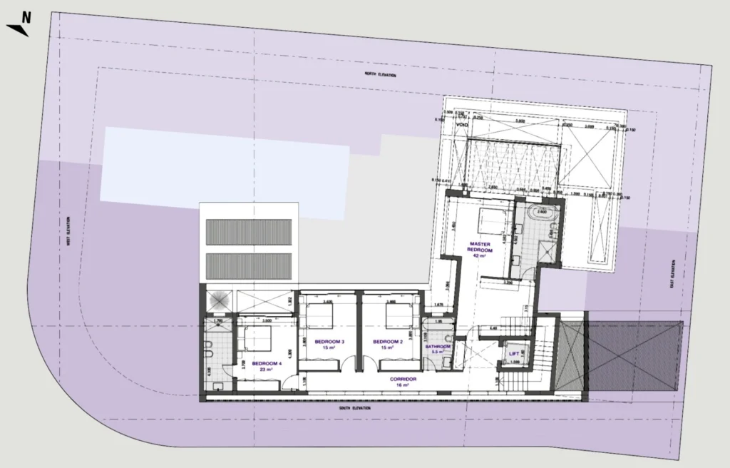
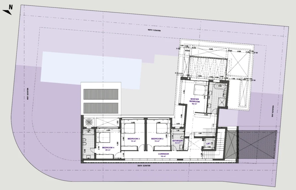
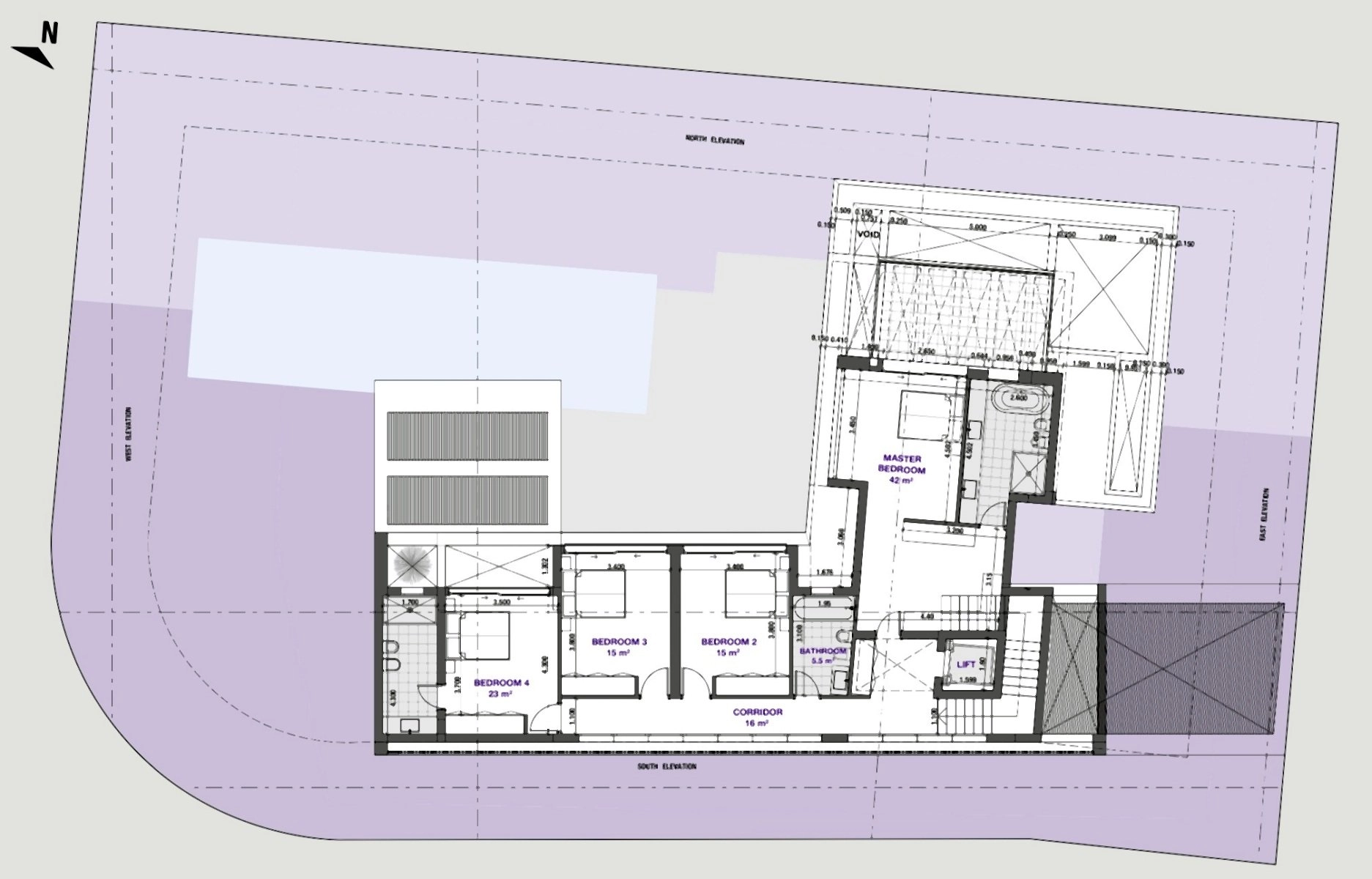
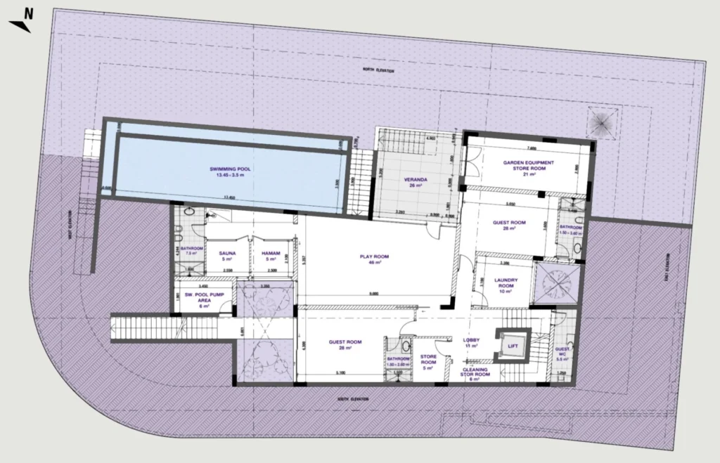
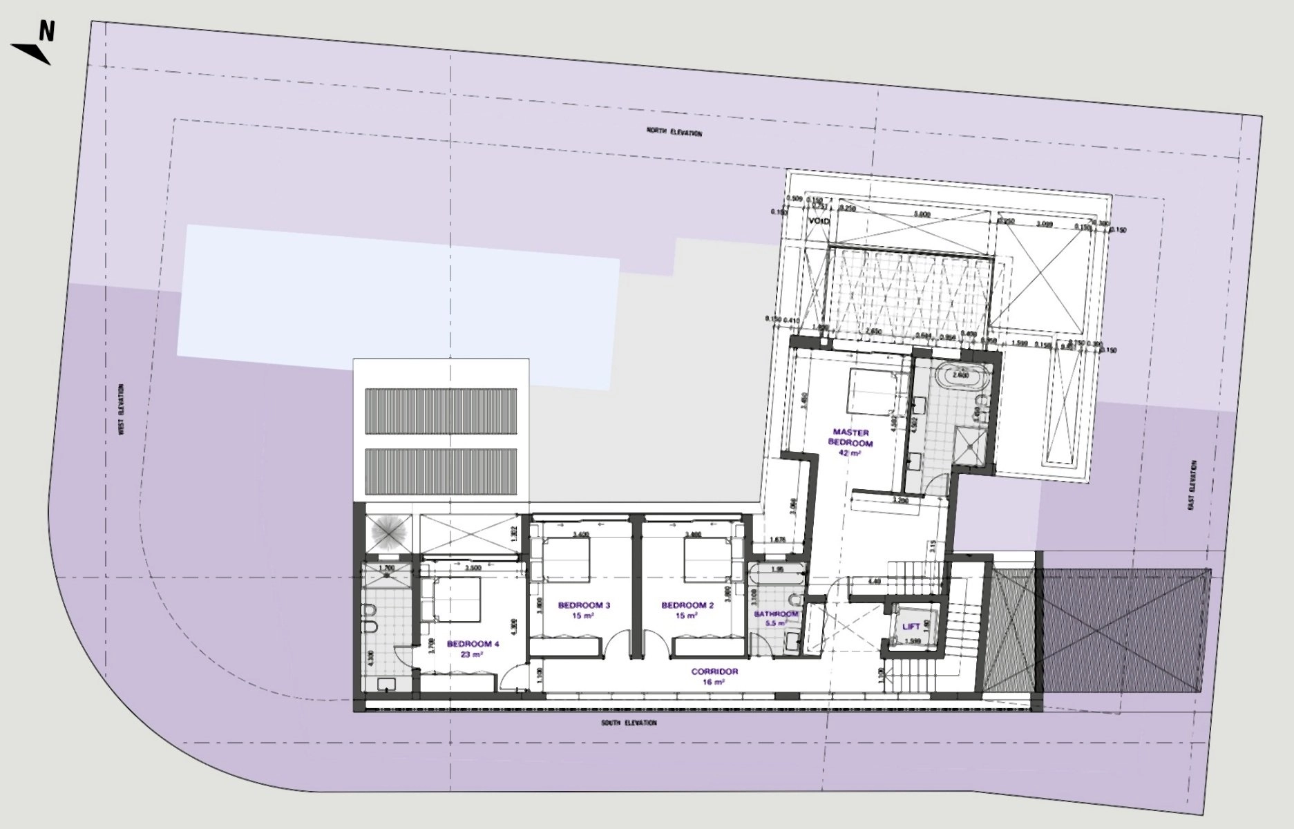
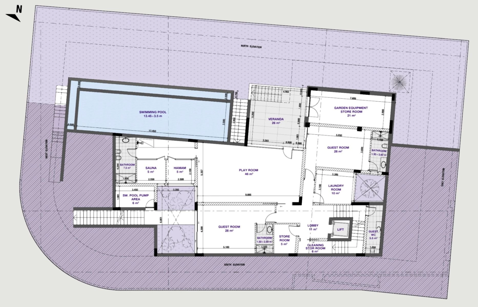
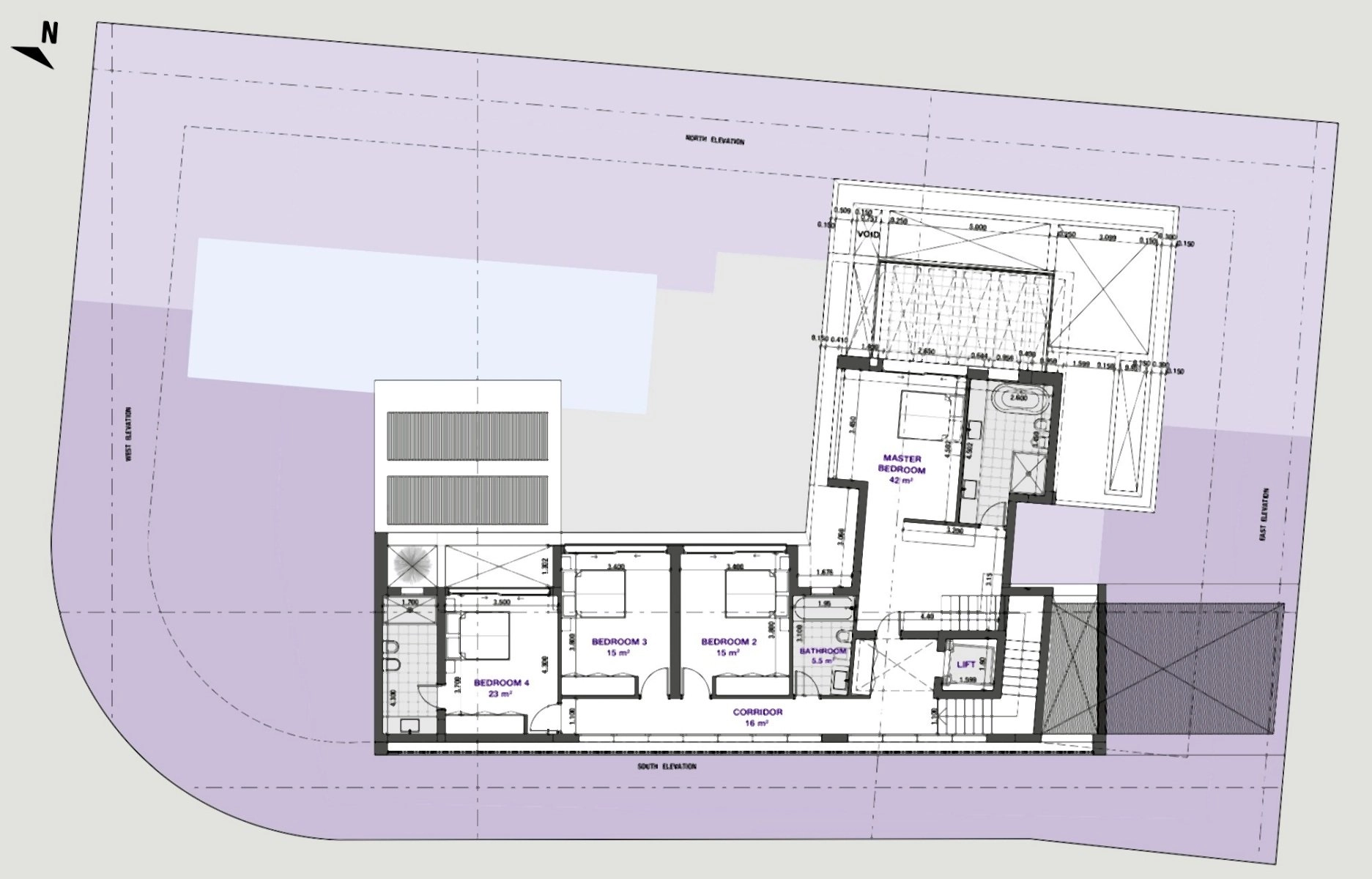
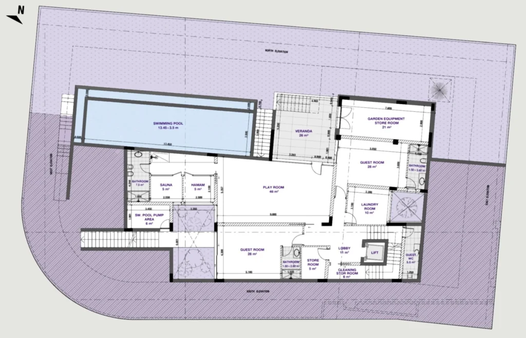
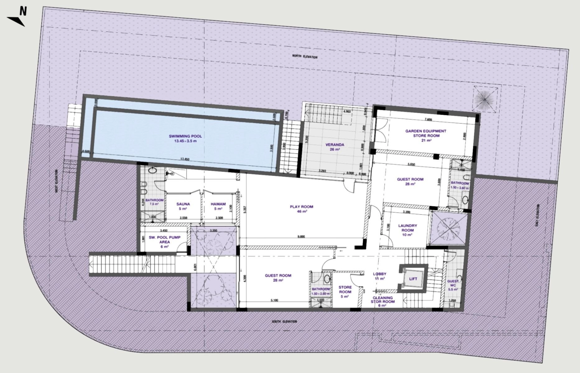
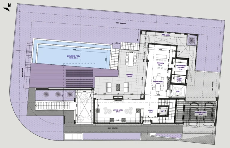
This exceptional villa, located in the prestigious Kalogiry area of Limassol, offers a modern design with high-end finishes and a seamless blend into its natural surroundings. Spanning three levels, the home features six spacious bedrooms, including a luxurious master suite with a walk-in wardrobe and private bathroom. The open-plan living areas include a stylish entrance hall, a spacious living room, a dining area, and both a main and auxiliary kitchen.
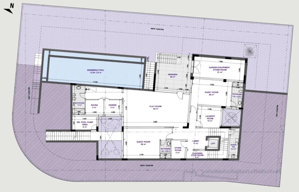
The basement level offers a wealth of amenities, including a guest bedroom, a versatile home office, a gym or billiard room, as well as a private hamam and sauna for unparalleled unwinding. Outdoors, an infinity overflow pool, solarium area, and a summer kitchen with a barbecue invite relaxation and enjoyment. The property is surrounded by a beautifully landscaped garden, complete with an automatic irrigation system.
The villa’s high-quality construction includes energy-efficient systems, smart home technology, and top-tier appliances. With its premium materials, custom design, and stunning views, this property provides a rare opportunity to own an extraordinary home in one of Limassol’s most sought-after locations.

  • €4 300 000
  • + VAT
Price per m²
€9641/m²
VAT
Not Included in Price
VAT for this property is €614,534 (Reduced 5% rate) or €817,000 (Full 19% rate). VAT usually is 19%. If it is your first purchase of property, you can have VAT reduced to 5% for the first 150sq.m. of the property.
Title Transfer Fee
No
  • Agency
  • R.N.:1013 L.N.:517/E
0/5

0 of 5

Contact Seller Directly
Please enable JavaScript in your browser to complete this form.
Preferred method of communication
  • Seriously interested in this property?

Get your property inspected on sight by our trusted and unbiased professionals who will give you full report of the property condition. (See sample report)

You can also get an instant property report based on the location of the property using historic and current market data. (See sample report)

Similar to 6+ Bedroom House for Sale in Mouttagiaka, Limassol District

Data Analytics

Mortgage Calculator






Total Monthly Payment:

Monthly Principal + Interest:

Loan-To-Value Ratio (LTV):

  • INDEX is the largest Real Estate marketplace in Cyprus. We strive to bring technology and data related to properties in one place.
  • Message Us

Support

© INDX Ltd. 2025 Registered in Cyprus with Registration number HE443934.

We are not a Real Estate agency and do not operate as an Agency.