Cyprus Real Estate Marketplace

3 Bedroom House for Sale in Koloni, Paphos District

  • 3
  • 3
  • Brand New
  • 196m²
  • €470 000
  • + VAT
  • ↓ €25 000 (5.05%)
Price per m²
€2398/m²
VAT
Not Included in Price
VAT for this property is €38,943 (Reduced 5% rate) or €89,300 (Full 19% rate). VAT usually is 19%. If it is your first purchase of property, you can have VAT reduced to 5% for the first 150sq.m. of the property.
Title Transfer Fee
No

Price History

  • Ref. #: 32319
  • Plot area: 260m²
  • Heating: Yes, Underfloor Heating  
  • Air Conditioning: Yes
  • Safety and Security: Alarm
  • BBQ zone

Modern Luxury Villas – Geroskipou, Paphos

This exclusive collection of modern villas is located in a peaceful residential area of Geroskipou, Paphos, within a secure gated community that combines contemporary design, privacy, and sustainable living.

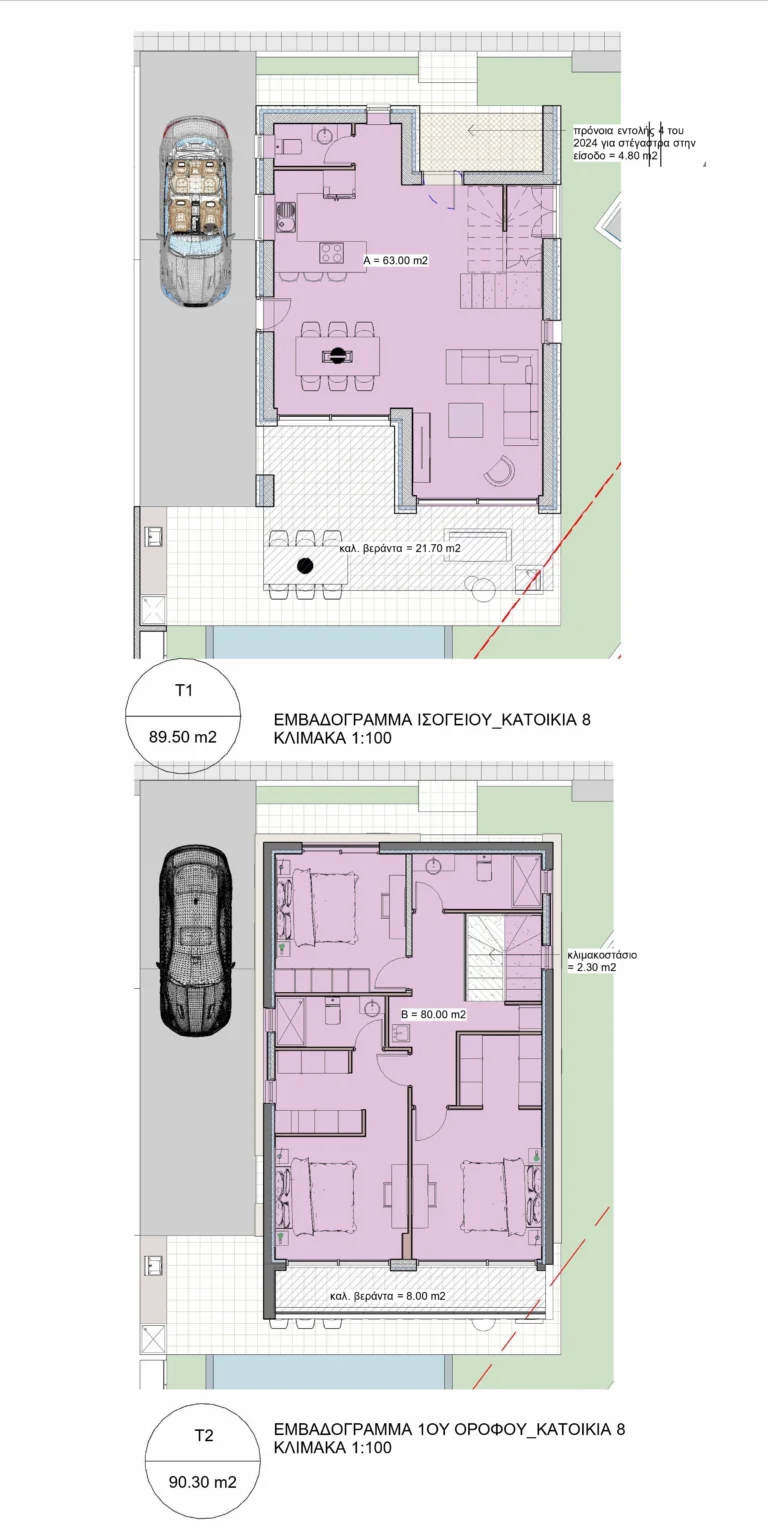
Each villa is set on a private plot starting from 255 m², with a covered area of approximately 138–156 m², carefully designed to enhance natural light, ventilation, and seamless indoor–outdoor living.

Interior Layout

The ground floor features a spacious open-plan living, dining, and kitchen area, opening onto a covered veranda (10–46 m²)—ideal for relaxation and entertaining. The layout also includes a guest WC, storage, and utility spaces for everyday comfort.

Upstairs, the property offers:

A master bedroom with ensuite bathroom and private balcony

Two additional bedrooms sharing a modern family bathroom

Optional study or home office

Outdoor Living

Each villa benefits from:

Private swimming pool

Landscaped garden

BBQ and outdoor dining area

Perfect for enjoying Cyprus’ Mediterranean lifestyle all year round.

Finishes & Smart Living

The interiors are finished with:

Neutral, elegant color palettes

Natural textures and high-quality materials

Contemporary kitchens and bathrooms

Smart home infrastructure for comfort, security, and efficiency

Sustainability Features

Energy-efficient design

Passive cooling and heating

Solar energy provision

Rainwater harvesting

Eco-friendly construction materials

Community Features

Secure gated development

Landscaped communal green areas

Walking paths

Private parking

Quiet, low-density residential environment

Location Advantages

Geroskipou Beach – approx. 5 minutes

Paphos town centre – 10 minutes

Paphos International Airport – 10 minutes

Close to schools, supermarkets, cafes, and restaurants

Easy access to golf courses and main road networks

FAQ – Frequently Asked Questions

Q: Is the property suitable for permanent residence?
A: Yes, the villas are designed for comfortable year-round living, offering privacy, modern layouts, and energy-efficient features.

Q: Is this a good investment opportunity?
A: Yes. The location in Geroskipou, combined with modern design and private pools, makes the villas suitable for both long-term and holiday rentals.

Q: Does each villa have a private swimming pool?
A: Yes, every villa includes a private swimming pool.

Q: Is the development gated?
A: Yes, the villas are located within a secure gated community.

Q: Are smart home features included?
A: Smart home infrastructure is included, with options for additional upgrades depending on the buyer’s preferences.

Q: Can finishes or layouts be customized?
A: Customization may be possible depending on the construction stage at the time of purchase.

Q: What is the delivery time?
A: Delivery is 18 months after signing the agreement.

Q: Is private parking available?
A: Yes, private parking is provided for each villa.

Q: How close are amenities and services?
A: Beaches, shops, schools, restaurants, Paphos town centre, and the airport are all within a short driving distance.

Additional Extra :
Swimming pool : 20.000
Premium Furniture Package : Complete of furniture, electric appliances ,curtains/blinds, indoor lighting fixtures

Delivery: 18 months after signing the agreement
Estimated completion: 2027

  • €470 000
  • + VAT
  • ↓ €25 000 (5.05%)
Price per m²
€2398/m²
VAT
Not Included in Price
VAT for this property is €38,943 (Reduced 5% rate) or €89,300 (Full 19% rate). VAT usually is 19%. If it is your first purchase of property, you can have VAT reduced to 5% for the first 150sq.m. of the property.
Title Transfer Fee
No

Price History

  • Agency
  • R.N.:488 L.N.:344/E
0/5

0 of 5

Contact Seller Directly
Please enable JavaScript in your browser to complete this form.
Preferred method of communication
  • Seriously interested in this property?

Get your property inspected on sight by our trusted and unbiased professionals who will give you full report of the property condition. (See sample report)

You can also get an instant property report based on the location of the property using historic and current market data. (See sample report)

Other Listings of This Property

Similar to 3 Bedroom House for Sale in Koloni, Paphos District

Data Analytics

Mortgage Calculator






Total Monthly Payment:

Monthly Principal + Interest:

Loan-To-Value Ratio (LTV):

  • INDEX is the largest Real Estate marketplace in Cyprus. We strive to bring technology and data related to properties in one place.
  • Message Us

Support

© INDX Ltd. 2025 Registered in Cyprus with Registration number HE443934.

We are not a Real Estate agency and do not operate as an Agency.