Cyprus Real Estate Marketplace

3 Bedroom House for Sale in Dromolaxia, Larnaca District

  • 3
  • 3
  • 220m²
  • €495 000
Price per m²
€2250/m²
Title Transfer Fee
~€16,400
  • Ref. #: 15942
  • Plot area: 255m²
  • Parking: Yes, Covered  
  • Energy Efficiency: A
  • Covered Veranda: 24 m²
  • Internal Area: 196 m²
  • Furnishing: Unfurnished  
  • Air Conditioning: Yes
  • Parking

Set in Dromolaxia, a peaceful residential suburb of Larnaca, just a 15-minute drive from the city centre, this exclusive collection of detached homes offers a harmonious blend of modern comfort, privacy, and scenic surroundings. The development comprises eight stylish residences, thoughtfully designed to meet high standards of quality and contemporary living.
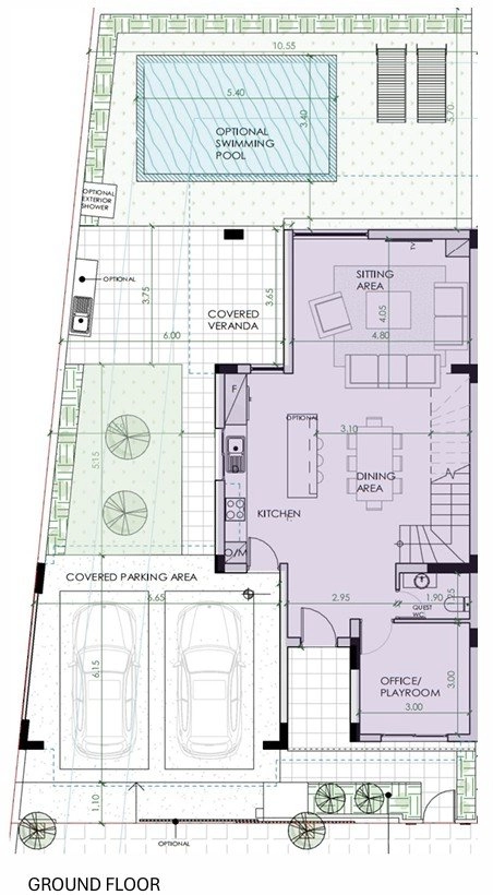
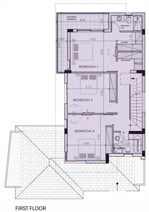
The ground floor features generous living and dining areas, a modern kitchen, and an additional room that can be used as a home office or playroom. The upper floor accommodates three well-appointed bedrooms, while the third level offers a more intimate layout with an additional room and a roof garden—an ideal retreat for relaxation while enjoying beautiful open views.
Every residence offers the option of a private swimming pool with outdoor shower, a landscaped garden, and a spacious veranda designed for outdoor living. High-quality finishes include granite worktops, fitted wardrobes, a solar water-heating system, and provisions for air conditioning throughout. Covered parking is also provided for each home.
Conveniently located close to all essential amenities and with easy access to the highway connecting all major towns, this boutique development perfectly balances tranquillity with accessibility—an exceptional opportunity for both permanent residence and investment.

  • €495 000
Price per m²
€2250/m²
Title Transfer Fee
~€16,400
  • Agency
  • R.N.:1013 L.N.:517/E
0/5

0 of 5

Contact Seller Directly
Please enable JavaScript in your browser to complete this form.
Preferred method of communication
  • Seriously interested in this property?

Get your property inspected on sight by our trusted and unbiased professionals who will give you full report of the property condition. (See sample report)

You can also get an instant property report based on the location of the property using historic and current market data. (See sample report)

Other Listings of This Property

Similar to 3 Bedroom House for Sale in Dromolaxia, Larnaca District

Data Analytics

Mortgage Calculator






Total Monthly Payment:

Monthly Principal + Interest:

Loan-To-Value Ratio (LTV):

  • INDEX is the largest Real Estate marketplace in Cyprus. We strive to bring technology and data related to properties in one place.
  • Message Us

Support

© INDX Ltd. 2025 Registered in Cyprus with Registration number HE443934.

We are not a Real Estate agency and do not operate as an Agency.