Cyprus Real Estate Marketplace

2 Bedroom Apartment for Sale in Limassol - Mesa Geitonia

  • 2
  • 2
  • Brand New
  • 87m²
  • €580 000
  • + VAT
  • ↑ €30 000 (5.45%)
Price per m²
€6667/m²
VAT
Not Included in Price
VAT for this property is €29,000 (Reduced 5% rate) or €110,200 (Full 19% rate). VAT usually is 19%. If it is your first purchase of property, you can have VAT reduced to 5% for the first 150sq.m. of the property.
Title Transfer Fee
No

Price History

  • Ref. #: 21414
  • Parking: Yes, Covered  
  • Pool:Yes 
  • Heating: Yes, Central Heating  
  • Air Conditioning: Yes
  • Balcony

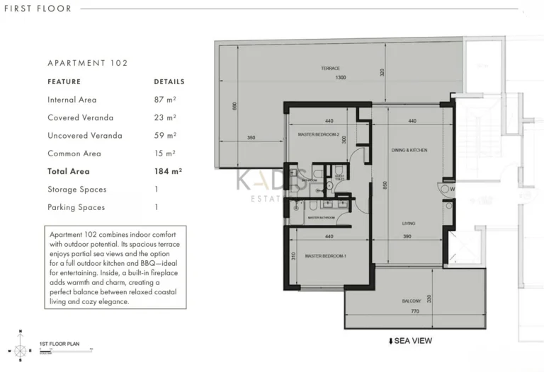
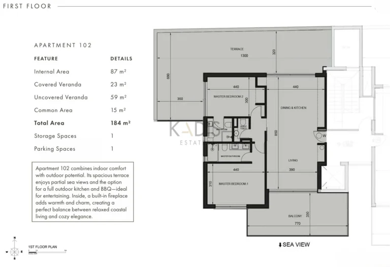
Discover a lovely two bedroom top floor apartment for sale in Mesa Geitonia. The property consists of 87 sqm covered area and 17 sqm covered veranda. In more detail, it comprises of a living room, an open plan kitchen, two spacious bedroom, an en-suite bathroom and the main bathroom. It is situated on the first floor of a four-story building and comes with one covered parking spot, a storage unit and a communal pool.

Ideally located in the heart of the city, it enjoys quick access to both the seaside and the highway, while in close proximity, you may find all essential amenities such as supermarkets, kiosks, restaurants, pharmacies, banks and gyms.

  • €580 000
  • + VAT
  • ↑ €30 000 (5.45%)
Price per m²
€6667/m²
VAT
Not Included in Price
VAT for this property is €29,000 (Reduced 5% rate) or €110,200 (Full 19% rate). VAT usually is 19%. If it is your first purchase of property, you can have VAT reduced to 5% for the first 150sq.m. of the property.
Title Transfer Fee
No

Price History

  • Agency
  • R.N.:694 L.N.:372/E
0/5

0 of 5

Contact Seller Directly
Please enable JavaScript in your browser to complete this form.
Preferred method of communication
  • Seriously interested in this property?

Get your property inspected on sight by our trusted and unbiased professionals who will give you full report of the property condition. (See sample report)

You can also get an instant property report based on the location of the property using historic and current market data. (See sample report)

Similar to 2 Bedroom Apartment for Sale in Limassol - Mesa Geitonia

Data Analytics

Mortgage Calculator






Total Monthly Payment:

Monthly Principal + Interest:

Loan-To-Value Ratio (LTV):

  • INDEX is the largest Real Estate marketplace in Cyprus. We strive to bring technology and data related to properties in one place.
  • Message Us

Support

© INDX Ltd. 2025 Registered in Cyprus with Registration number HE443934.

We are not a Real Estate agency and do not operate as an Agency.