Cyprus Real Estate Marketplace

225m² Plot for Sale in Columbia Area, Limassol District

  • Pre-Owned
  • €325 000
Price per m²
€1444/m²
Title Transfer Fee
~€9,600
  • Ref. #: 27362
  • Plot area: 225m²

An excellent opportunity to acquire a 1/2 share of a 225 sq.m. plot in the highly sought-after Columbia area of Germasogeia. With a division agreement and an approved planning license for a residential building, the property offers 100% building density, making it ideal for modern development in a prime location.

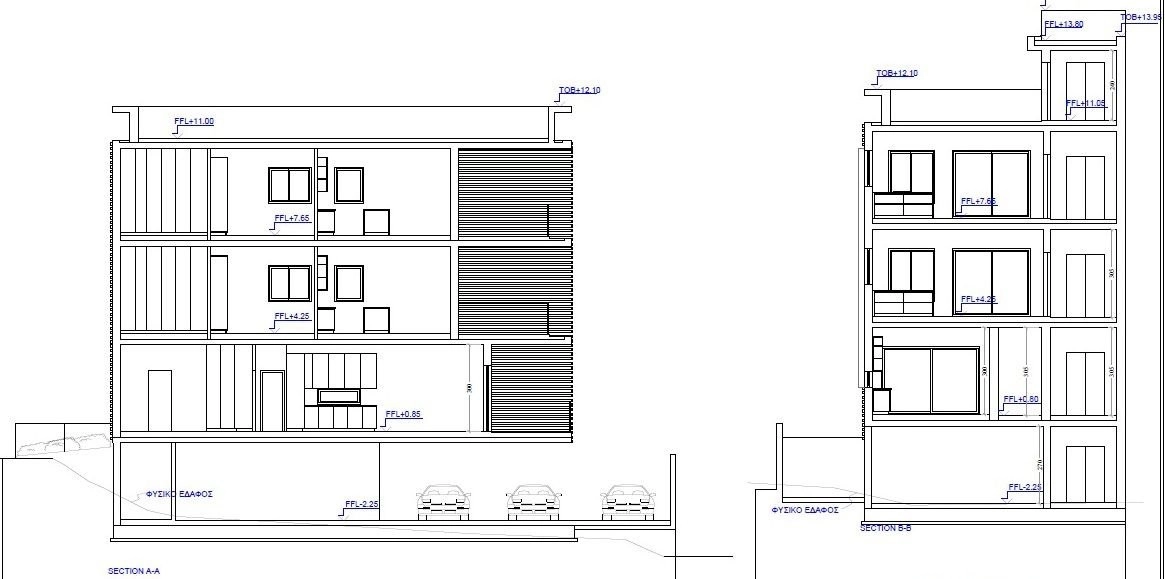
The approved architectural plans include:

– Ground Floor: Dedicated parking area.
– 1st Floor – Apartment 001: 85 sq.m. of covered space + 12 sq.m. covered veranda.
– 2nd Floor – Apartment 101: 76 sq.m. of covered space + 20 sq.m. covered veranda.
– 3rd Floor – Apartment 201: 76 sq.m. of covered space + 20 sq.m. covered veranda.

Located in a prestigious area near the sea, just 500 meters from Kolonakiou Street, this plot combines residential tranquility with premium accessibility. With top amenities, schools, and services within close reach, it presents an outstanding investment opportunity in one of Limassol’s most desirable neighborhoods.

  • €325 000
Price per m²
€1444/m²
Title Transfer Fee
~€9,600
  • Agency
  • R.N.:488 L.N.:344/E
0/5

0 of 5

Contact Seller Directly
Please enable JavaScript in your browser to complete this form.
Preferred method of communication
  • Seriously interested in this property?

Get your property inspected on sight by our trusted and unbiased professionals who will give you full report of the property condition. (See sample report)

You can also get an instant property report based on the location of the property using historic and current market data. (See sample report)

Similar to 225m² Plot for Sale in Columbia Area, Limassol District

Data Analytics

Mortgage Calculator






Total Monthly Payment:

Monthly Principal + Interest:

Loan-To-Value Ratio (LTV):

  • INDEX is the largest Real Estate marketplace in Cyprus. We strive to bring technology and data related to properties in one place.
  • Message Us

Support

© INDX Ltd. 2025 Registered in Cyprus with Registration number HE443934.

We are not a Real Estate agency and do not operate as an Agency.