Building Plot with Planning Permit & Architectural Plans in Port area, Larnaca. Located in a prime position in the New Marina, Port area of Larnaca District, this property offers a unique opportunity for investors or individuals looking to develop a high-standard real estate project. The plot is just minutes away from Larnaca Town Center and provides immediate access to a wide range of amenities and services, such as supermarkets, shops, restaurants, schools, and bakeries. Additionally, its easy connection to the main road network facilitates access to Larnaca, Ayia Napa, and Nicosia.
Plot for sale in Prodromos area. Plot of 477 sq m falls with planning zone Kα4, with 120% building density, 50% land coverage and the ability to construct a building with max height of 13.5 m. The plot has public road access.
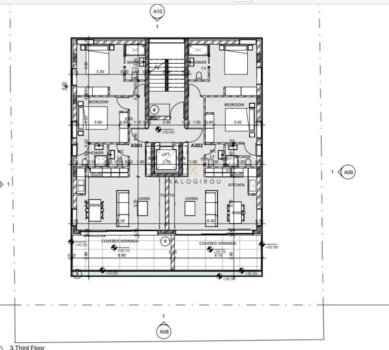
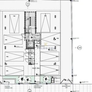
This plot comes with an approved planning permit and architectural plans for the construction of a four-storey apartment building comprising seven apartments:
• 1st, 2nd, and 3rd Floors:
Each floor features two spacious two-bedroom apartments with functional layouts, perfect for families, couples, or individuals.
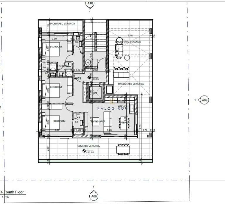
• 4th Floor:
A luxurious three-bedroom penthouse with expansive covered and uncovered verandas, offering exceptional living spaces ideal for relaxation, entertainment, and potential for panoramic views of the surrounding area.
This property is an ideal choice for investors looking to capitalize on Larnaca’s growing real estate market or for those wishing to build a luxurious residence for their family.
Title deed available.
Get your property inspected on sight by our trusted and unbiased professionals who will give you full report of the property condition. (See sample report)
You can also get an instant property report based on the location of the property using historic and current market data. (See sample report)
No results available
Support
Information
Cookie Consent. We use cookies to improve your experience, analyze traffic, and personalize content. By clicking "Accept," you consent to our use of cookies. Cookie Policy Privacy Statement