Cyprus Real Estate Marketplace

3,126m² Plot for Sale in Strovolos, Nicosia District

  • €1 250 000
Price per m²
€400/m²
Title Transfer Fee
~€46,600
  • Ref. #: 25739
  • Plot area: 3126m²

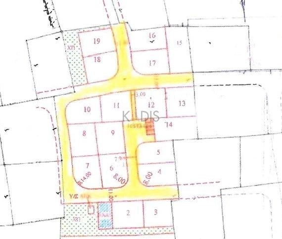
Corner industrial plot, adjacent to green area and government owned land, extending to about 3.126 sq.m. in total, in Strovolos, Nicosias’ commercial/industrial area.
The property has a flat surface, a relatively regular shape and access is via a registered road with a total road frontage of approximately 83m.
The asset benefits from easy access to the Nicosia Limassol & Larnaca motorway.
It is situated in a dead end road, next to the green point of Strovolos Municipality and very near large DIY stores such as Leroy Merlin, IKEA and Superhome, The Mall of Cyprus as well as the Nicosia General Hospital.
The surrounding area comprises mainly of large commercial and industrial units and car showrooms.
The property falls within Zone Βα3, with a building coefficient of 100%, coverage of 60%, and permission for 2 floors of construction.

  • €1 250 000
Price per m²
€400/m²
Title Transfer Fee
~€46,600
  • Agency
  • R.N.:694 L.N.:372/E
0/5

0 of 5

Contact Seller Directly
Please enable JavaScript in your browser to complete this form.
Preferred method of communication
  • Seriously interested in this property?

Get your property inspected on sight by our trusted and unbiased professionals who will give you full report of the property condition. (See sample report)

You can also get an instant property report based on the location of the property using historic and current market data. (See sample report)

Other Listings of This Property

No results available

Similar to 3,126m² Plot for Sale in Strovolos, Nicosia District

Data Analytics

Mortgage Calculator






Total Monthly Payment:

Monthly Principal + Interest:

Loan-To-Value Ratio (LTV):

  • INDEX is the largest Real Estate marketplace in Cyprus. We strive to bring technology and data related to properties in one place.
  • Message Us

Support

© INDX Ltd. 2025 Registered in Cyprus with Registration number HE443934.

We are not a Real Estate agency and do not operate as an Agency.