- €300 000
- +VAT
- ↓ €50 000 (14.29%)
- €2069/m2
- 145m²
- 3
- 2
- 2026
- Under Construction
- 58234
Price History
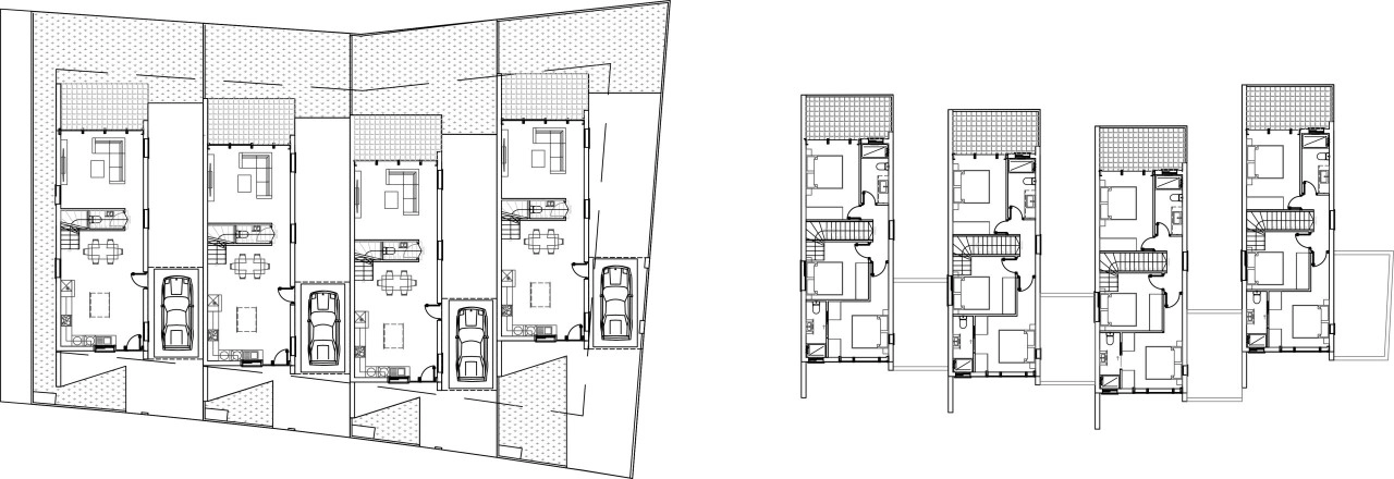
New residential complex located in Souni area.
The project consists of 4 houses.
Key Features
Anti-seismic design
Double-glazing windows
Provision (piping and wiring) for air conditioning units
Ventilators in internal bathrooms and toilets
Provision for extractor above cooking area in the kitchen
AVAILABILITY
House
Internal area 120,5 sq.m.
Covered veranda 24,7 sq.m.
There are more houses available in this project.
Completion date: End of 2026
Price History
Get your property inspected on sight by our trusted and unbiased professionals who will give you full report of the property condition. (See sample report)
You can also get an instant property report based on the location of the property using historic and current market data. (See sample report)
No results available
No results available
Support
Information
Cookie Consent. We use cookies to improve your experience, analyze traffic, and personalize content. By clicking "Accept," you consent to our use of cookies. Cookie Policy Privacy Statement