- €304 000
- +VAT
-
- €2000/m2
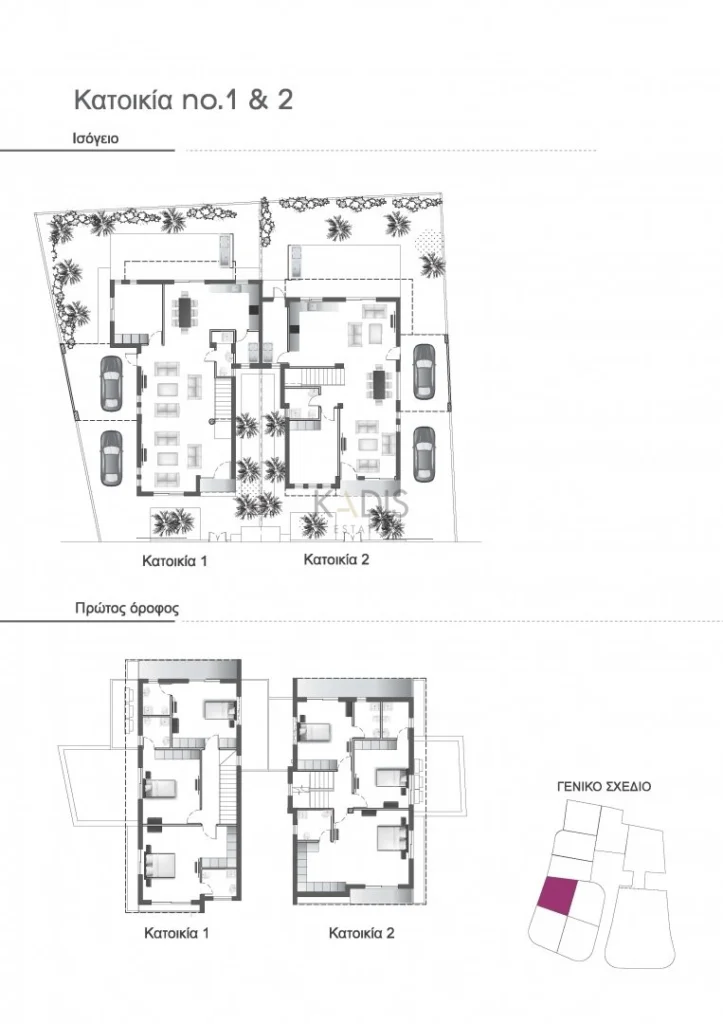
•3 Bedrooms
•3 WC
•Internal Area 152m2
•Covered verandas 28m2
•Plot size 249m2
•En Suite Bathroom
•Guest WC
•Covered parking
•Photovoltaic Panels Installation 3KW
•Energy Efficiency ”A”
Get your property inspected on sight by our trusted and unbiased professionals who will give you full report of the property condition. (See sample report)
You can also get an instant property report based on the location of the property using historic and current market data. (See sample report)
No results available
Support
Information
Cookie Consent. We use cookies to improve your experience, analyze traffic, and personalize content. By clicking "Accept," you consent to our use of cookies. Cookie Policy Privacy Statement