- €685 000
- +VAT
-
- €3806/m2
- 180m²
- 4
- 3
- Brand New
- Yes, Covered
- 52806
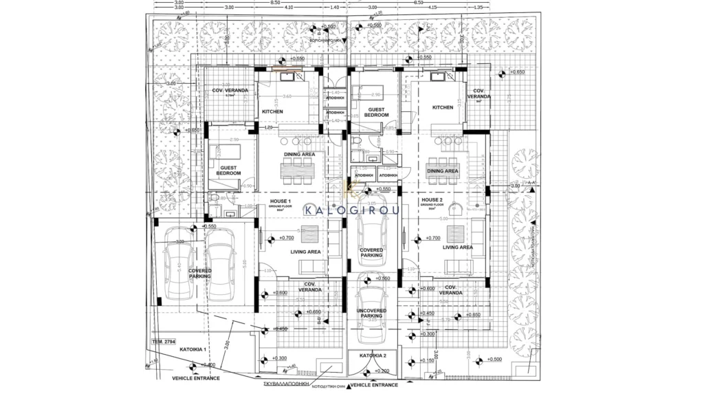
Semi-Detached, 4 Bedroom House for Sale in Ekali area, Limassol. Surrounded by lovely residences and situated in a prestigious neighborhood, which offers convenient access to all amenities, including schools and shops. a short distance to the sea.
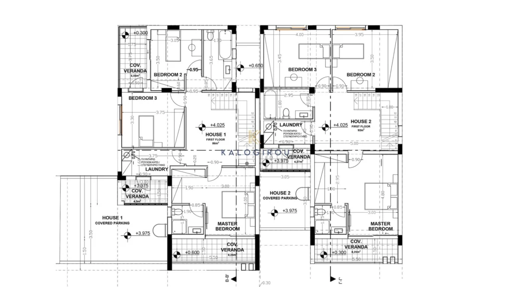
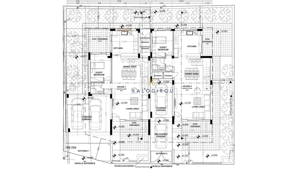
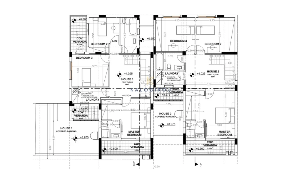
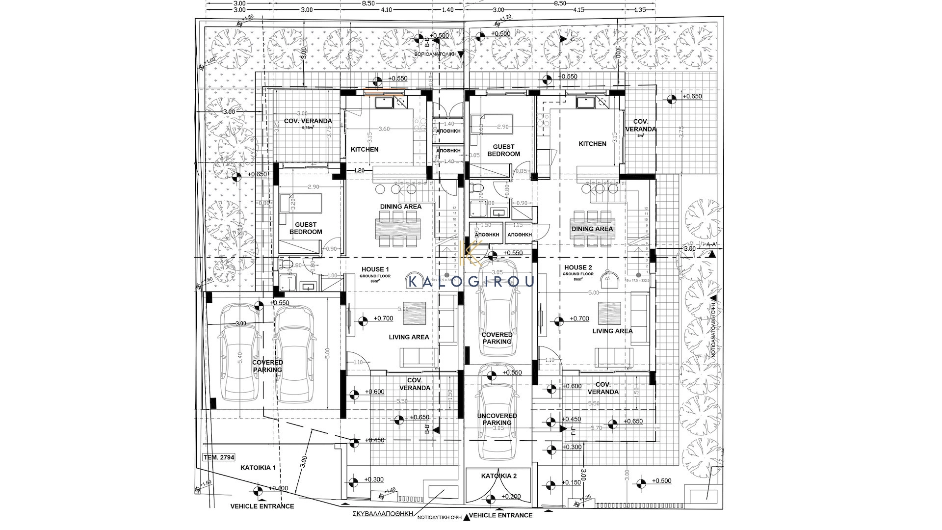
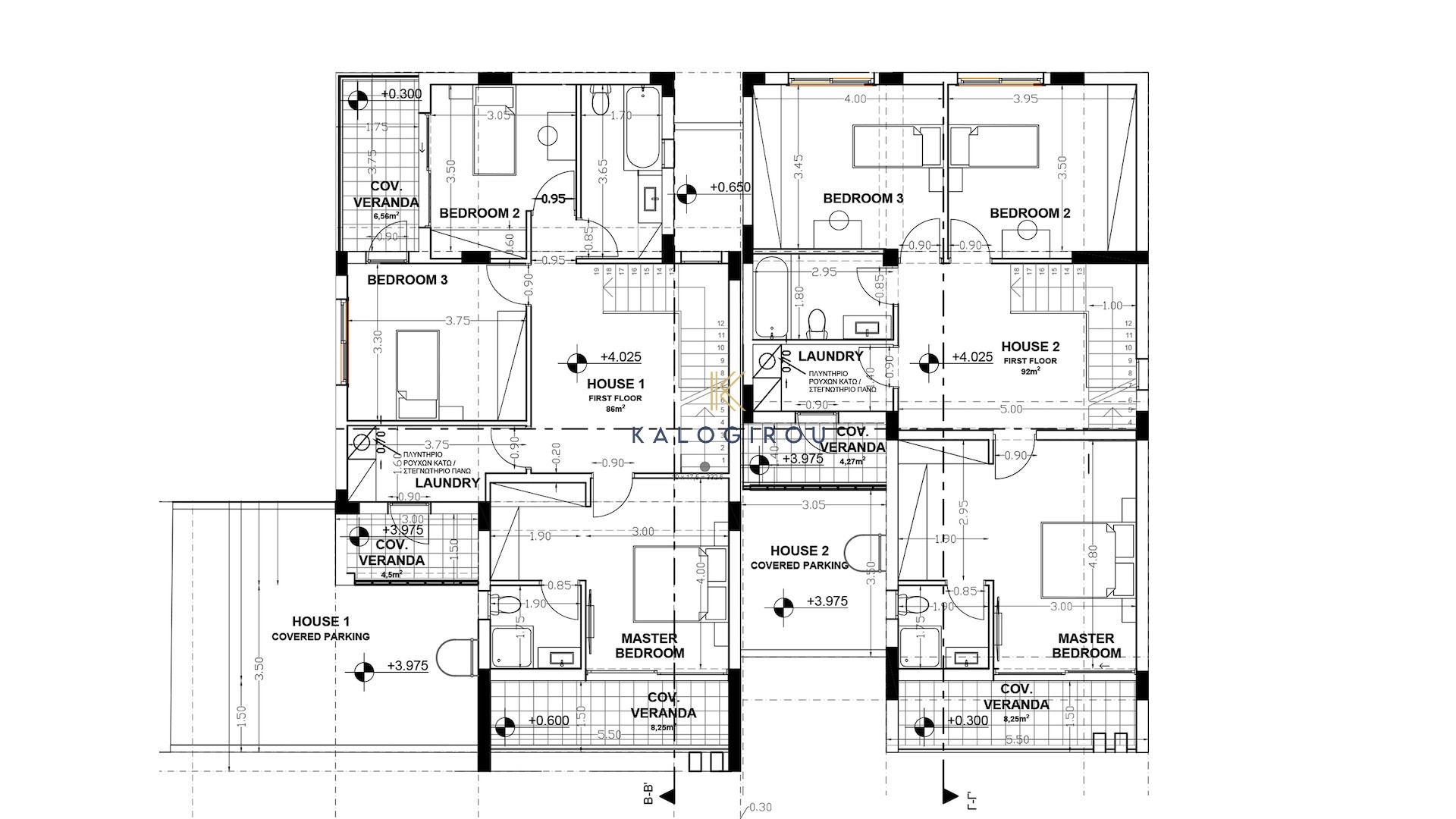
Double storey house for sale in Ekali area, Limassol district. The house offers 185 sqm living area, 226 sqm covered areas & 257 sqm plot area. The ground floor consists of an open plan kitchen, living & dining area, a shower room, guest bedroom, two covered verandas (front and back) and 2 storages. The first floor consists of a main bathroom, laundry space, 3 bedrooms and 2 covered verandas. Master bedroom is en suite & with veranda access (front side). In addition, there is double covered parking space.
The house is part of a small project with just two semi- detached houses of four bedrooms. The houses come fully air conditioned and equipped with kitchen appliances. Solar photovoltaic panels (3KW) also installed.
Extra: A/C, Kitchen Appliances, Photovoltaic System, Covered Verandas, Yard, Double Covered Parking, Energy Efficiency Class A
Get your property inspected on sight by our trusted and unbiased professionals who will give you full report of the property condition. (See sample report)
You can also get an instant property report based on the location of the property using historic and current market data. (See sample report)
No results available
Support
Information
Cookie Consent. We use cookies to improve your experience, analyze traffic, and personalize content. By clicking "Accept," you consent to our use of cookies. Cookie Policy Privacy Statement