Cyprus Real Estate Marketplace

240m² Office for Sale in Limassol - Tsiflikoudia

  • Pre-Owned
  • 240m²
  • €700 000
Price per m²
€2917/m²
Title Transfer Fee
~€24,600
  • Ref. #: 238906
  • Energy Efficiency: B
  • Air Conditioning: Yes

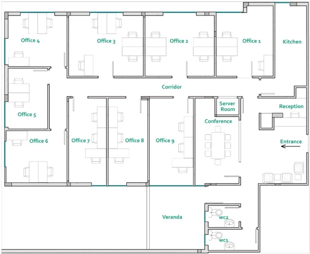
We are pleased to offer two fully renovated office spaces for sale in a prime location on Franklin Roosevelt Street, ideally situated between Limassol Marina and the New Port. Located on the first floor of a two-story building, the two offices are opposite each other and can be used as one.

The property is strategically positioned close to essential infrastructure, including administrative buildings, banks, and the offices of both local and international companies—making it an excellent choice for your business operations.

Office 1
• Total Area: 180 m²
• Reception Area
• 9 Spacious Offices
• Conference Room
• Server Room
• Kitchen
• 2 WCs (Men/Women)
• Covered Veranda
• Air Conditioning (Hot/Cold)
• 2 Dedicated Parking Spaces
• Fully Renovated in 2023
• Estimated Rental Yield: 7%

Office 2
• Total Area: 60 m²
• Reception Area
• 1 Managerial Office
• Conference Room
• Server Room
• Kitchen
• WC
• Covered Veranda
• Air Conditioning (Hot/Cold)
• 1 Dedicated Parking Space
• Fully Renovated in 2023
• Estimated Rental Yield: 7%

  • Minucipality: Limassol - Tsiflikoudia
  • District: Limassol
  • Postal code: 3011
  • €700 000
Price per m²
€2917/m²
Title Transfer Fee
~€24,600
  • Agency
  • R.N.:229/E L.N.:1047
0/5

0 of 5

Contact Seller Directly
Please enable JavaScript in your browser to complete this form.
Preferred method of communication
  • Seriously interested in this property?

Get your property inspected on sight by our trusted and unbiased professionals who will give you full report of the property condition. (See sample report)

You can also get an instant property report based on the location of the property using historic and current market data. (See sample report)

Similar to 240m² Office for Sale in Limassol - Tsiflikoudia

Data Analytics

Mortgage Calculator






Total Monthly Payment:

Monthly Principal + Interest:

Loan-To-Value Ratio (LTV):

  • INDEX is the largest Real Estate marketplace in Cyprus. We strive to bring technology and data related to properties in one place.
  • Message Us

Support

© INDX Ltd. 2025 Registered in Cyprus with Registration number HE443934.

We are not a Real Estate agency and do not operate as an Agency.