ELIGIBLE FOR 5% VAT
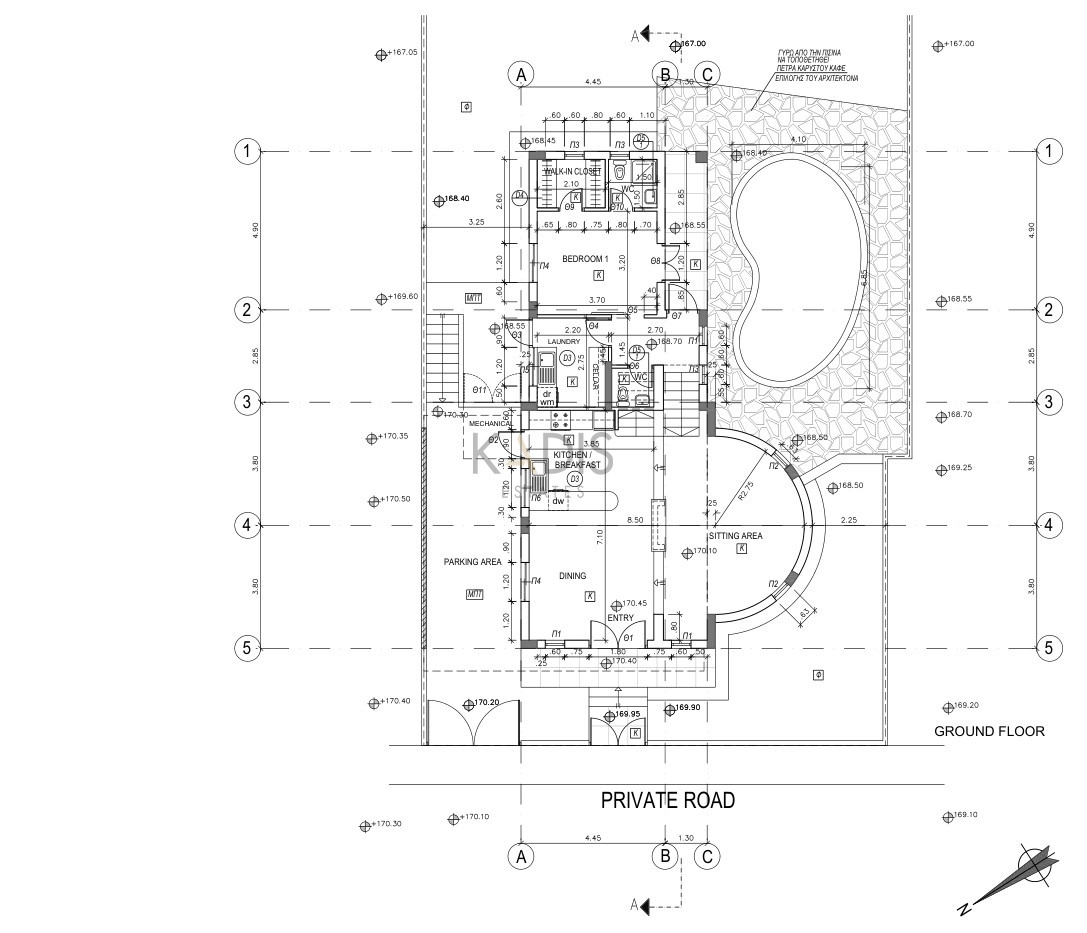
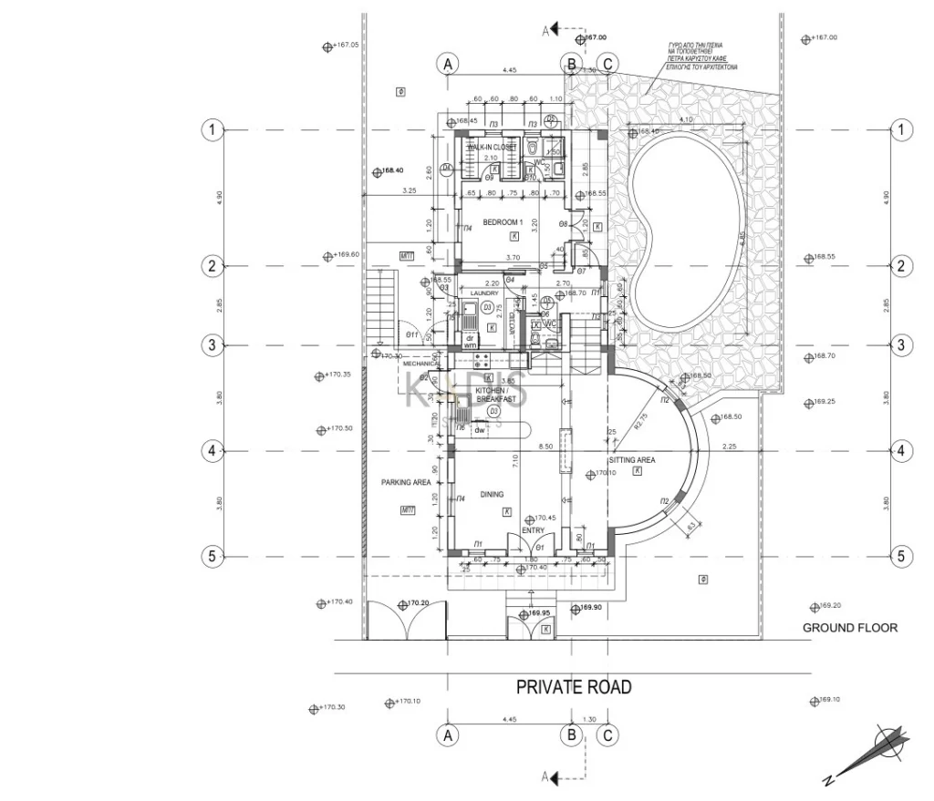
For sale: a modern, key-ready detached villa in the peaceful area of Choirokoitia. This beautiful home offers an internal space of 134 m², all on the ground floor, making it accessible and spacious. The villa features 2 comfortable bedrooms and 3 modern bathrooms, ideal for both families and couples who value privacy and convenience.
Built in 2025, this property uses contemporary design, with quality finishes throughout. Step outside to a large plot, perfect for outdoor living, gardening, or simply relaxing. Enjoy your own private swimming pool, perfect for warm days and entertaining guests.
Choirokoitia is known for its tranquil surroundings and scenic beauty. The area offers a blend of countryside charm and easy access to local amenities. You will enjoy peaceful living while still being close to shops, cafes, and transport links.
•2 bedrooms
•3 W/C
•Internal Area 134m2
•Covered Verandas 17m2
•Plot Area 510m2
•Covered Parking
•Swimming Pool
This detached villa is an excellent choice for those seeking a modern, move-in-ready home in a welcoming community. For more information or to arrange a viewing, contact Kadis Estates today.
Get your property inspected on sight by our trusted and unbiased professionals who will give you full report of the property condition. (See sample report)
You can also get an instant property report based on the location of the property using historic and current market data. (See sample report)
Support
Information
Cookie Consent. We use cookies to improve your experience, analyze traffic, and personalize content. By clicking "Accept," you consent to our use of cookies. Cookie Policy Privacy Statement