Cyprus Real Estate Marketplace

3 Bedroom House for Sale in Agia Marinouda, Paphos District

  • 3
  • 2
  • 178m²
  • €675 000
Price per m²
€3792/m²
Title Transfer Fee
~€23,600
  • Ref. #: 16976
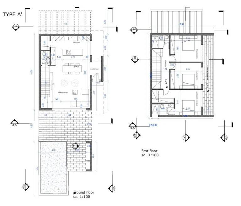
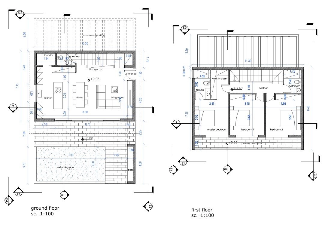
  • Plot area: 480m²
  • Parking: Yes, Covered  
  • Pool:Yes 
  • Covered Veranda: 32 m²
  • Internal Area: 146 m²
  • Heating: Yes, Underfloor Heating  
  • Furnishing: Unfurnished  
  • Air Conditioning: Yes
  • Parking

A sense of calm defines this boutique collection of just five private villas, set in the peaceful residential enclave of Agia Marinouda in Paphos, where quiet surroundings meet effortless access to the coast and everyday amenities within a short drive.
Each residence is thoughtfully designed to balance architectural clarity with comfortable family living. Interiors are characterised by high ceilings and tall doors, creating an immediate sense of space and natural light. The layout flows naturally between living, dining, and kitchen areas, extending outdoors to a dedicated barbecue and outdoor kitchen space designed for relaxed entertaining.
All villas feature three well-proportioned bedrooms, along with a private swimming pool and a rooftop veranda that introduces an additional dimension of outdoor living, ideal for unwinding or hosting in a more elevated setting.
The project incorporates advanced construction standards and energy-efficient solutions, including full thermal insulation, underfloor heating with separate zones, photovoltaic systems, and provisions for electric vehicle charging.
With its limited number of homes, strong architectural identity, and desirable location, this development presents a compelling opportunity for both refined living and long-term investment.

  • €675 000
Price per m²
€3792/m²
Title Transfer Fee
~€23,600
  • Agency
  • R.N.:1013 L.N.:517/E
0/5

0 of 5

Contact Seller Directly
Please enable JavaScript in your browser to complete this form.
Preferred method of communication
  • Seriously interested in this property?

Get your property inspected on sight by our trusted and unbiased professionals who will give you full report of the property condition. (See sample report)

You can also get an instant property report based on the location of the property using historic and current market data. (See sample report)

Similar to 3 Bedroom House for Sale in Agia Marinouda, Paphos District

Data Analytics

Mortgage Calculator






Total Monthly Payment:

Monthly Principal + Interest:

Loan-To-Value Ratio (LTV):

  • INDEX is the largest Real Estate marketplace in Cyprus. We strive to bring technology and data related to properties in one place.
  • Message Us

Support

© INDX Ltd. 2025 Registered in Cyprus with Registration number HE443934.

We are not a Real Estate agency and do not operate as an Agency.