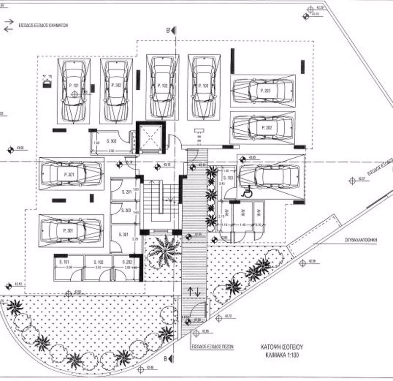
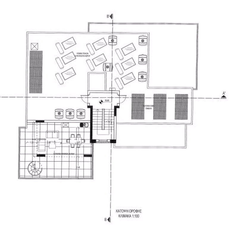
Two Bedroom Apartment for sale in Agios Spyridonas, Limassol – Title Deeds (New Build Process) Luxury 2 bedroom apartment in a bustling urban neighbourhood in the heart of the city. The project comprises of 8 apartments of varying sizes, spread across three floors. This new development exudes an aura of warmth and is within walking distance to all amenities. - 2 Bedrooms with fitted wardrobes - Open plan living – dining – kitchen area - Family bathroom - Guest WC - Un-furnished - Allocated parking - Provisions for air conditioning - Internal 81 m2 - Veranda 20 -25 m2 - Communal Fee TBC - Walking distance to local amenities - 9 Minutes to local hospital - 10 Minutes to shopping mall - 41 Minutes to Paphos International Airport - 47 Minutes to Larnaca International Airport - Suitable for Cyprus Permanent Residency - Subject to VAT - Energy Efficiency TBC Limassol Limassol is Cyprus’ cosmopolitan capital, its most important business district and a vibrant modern playground. It is consistently ranked as one of the world’s leading cities for quality of life. Nowhere in Cyprus is there a richer mix of modern culture and fascinating heritage. The city offers an active, vibrant and varied choice of restaurants, stylish cafes, bars and chic lounges. Limassol is a city on the southern coast of Cyprus. It’s known for the centuries-old Limassol Castle, home to the Cyprus Medieval Museum and its collection of pottery and tombstones. On the seafront is the Prokymea (Molos) Sculpture Park, with sculptures by Cypriot, Greek and international artists. To the northeast is the Limassol Archaeological Museum, exhibiting artefacts from the Neolithic to the Roman periods. Contrast this with the new marina and vibrant nightlife the city as to offer something for everyone. ———— * Title Deeds (New Build Process) * Allocated Parking * Close to Amenities * Suitable for Cyprus Permanent Residency * Subject to VAT * Under Construction – Delivery Due September 2025 * Energy Efficiency A Agios Spyridonas Agios Spyridonas County: Limassol Sale Type: For Sale Ref #: TDL004N2
Get your property inspected on sight by our trusted and unbiased professionals who will give you full report of the property condition. (See sample report)
You can also get an instant property report based on the location of the property using historic and current market data. (See sample report)
Support
Information
Cookie Consent. We use cookies to improve your experience, analyze traffic, and personalize content. By clicking "Accept," you consent to our use of cookies. Cookie Policy Privacy Statement