Cyprus Real Estate Marketplace

5 Bedroom House for Sale in Konia, Paphos District

  • 5
  • 4
  • Under Construction
  • 428m²
  • City view
  • €2 370 000
  • + VAT
Price per m²
€5537/m²
VAT
Not Included in Price
VAT for this property is €334,015 (Reduced 5% rate) or €450,300 (Full 19% rate). VAT usually is 19%. If it is your first purchase of property, you can have VAT reduced to 5% for the first 150sq.m. of the property.
Title Transfer Fee
No
  • Ref. #: 7115
  • Plot area: 750m²
  • Pool:Yes 
  • Covered Veranda: 74 m²
  • Uncovered Veranda: 40 m²
  • Internal Area: 354 m²
  • Heating: Yes, Underfloor Heating  
  • Total Number of Floors: 2
  • Safety and Security: Alarm

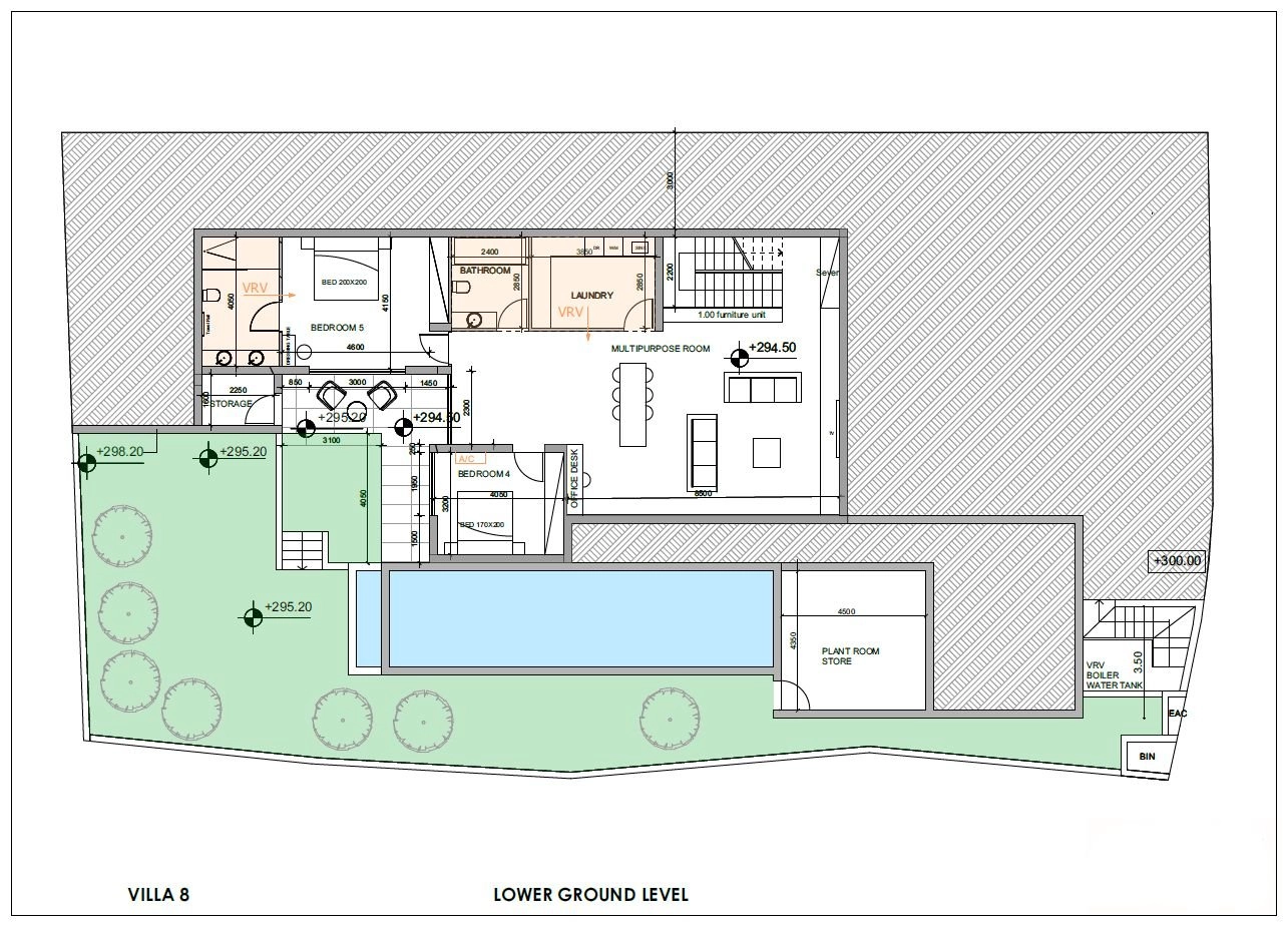
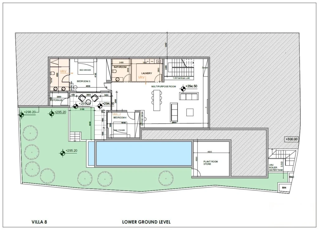
A five-bedroom, two-storey villa with a private swimming pool, offering an internal area of 354 m², is situated on a 750 m² plot.

Set above in the hills of Konia – Paphos, this collection of eight new villas offers residents inspiring views of the Mediterranean and the city below.

Each home is arranged to foster a natural flow between interior and exterior areas, featuring covered terraces, high windows, and open-plan layouts that welcome the light and gentle breezes of the Mediterranean climate. Living and dining spaces extend seamlessly into private gardens and swimming pools.

The design prioritizes privacy through strategic orientation and lush landscaping, ensuring each villa feels like a personal haven. Built with natural materials, neutral tones, and careful attention to detail, these villas combine modern comfort with an appreciation for the local environment.

Our project specification and pricing package includes a 10.1 kW photovoltaic system with high-output solar panels for renewable energy autonomy, electric curtain provisions in every room for effortless ambience control, and private parking with an electric gate and EV charger for two vehicles. Advanced security integrates an alarm, high-resolution cameras and a reinforced entrance lock. Comfort comes from underfloor heating powered by a heat pump and a concealed VRV cooling system, complemented by lofty ceilings and tall doors. The open-plan living, dining and kitchen area flows to an outdoor kitchen and barbecue space, with dedicated laundry, storage and plant rooms. All residences achieve Energy Efficiency Category A+.

  • Address: Konstanti Konstantinou, Konia 8300, Cyprus
  • Minucipality: Konia
  • District: Paphos
  • Postal code: 8300
  • Open in Maps →
  • €2 370 000
  • + VAT
Price per m²
€5537/m²
VAT
Not Included in Price
VAT for this property is €334,015 (Reduced 5% rate) or €450,300 (Full 19% rate). VAT usually is 19%. If it is your first purchase of property, you can have VAT reduced to 5% for the first 150sq.m. of the property.
Title Transfer Fee
No
  • Agency
  • R.N.:1311 L.N.:347/E
0/5

0 of 5

Contact Seller Directly
Please enable JavaScript in your browser to complete this form.
Preferred method of communication
  • Seriously interested in this property?

Get your property inspected on sight by our trusted and unbiased professionals who will give you full report of the property condition. (See sample report)

You can also get an instant property report based on the location of the property using historic and current market data. (See sample report)

Other Listings of This Property

Similar to 5 Bedroom House for Sale in Konia, Paphos District

Data Analytics

Mortgage Calculator






Total Monthly Payment:

Monthly Principal + Interest:

Loan-To-Value Ratio (LTV):

  • INDEX is the largest Real Estate marketplace in Cyprus. We strive to bring technology and data related to properties in one place.
  • Message Us

Support

© INDX Ltd. 2025 Registered in Cyprus with Registration number HE443934.

We are not a Real Estate agency and do not operate as an Agency.