- €740 000
- +VAT
-
- €4111/m2
- 180m²
- 3
- 3
- Under Construction
- Yes, Covered
- 163723
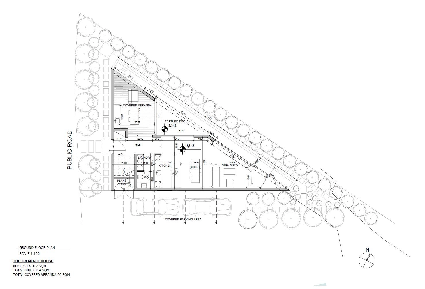
This is a striking three-bedroom luxury villa located in the prestigious Tombs of the Kings area. With its iconic triangular architecture and top-tier specifications, this villa redefines modern coastal living.
Boasting expansive open-plan interiors and a bold geometric design, this one-of-a-kind property offers both architectural brilliance and everyday comfort. Just a short stroll from premier amenities — including shops, fine dining, private schools, and the renowned Venus Beach — this luxury villa seamlessly blends convenience with elegance.
The ground floor features a spacious living and dining area, a sleek and modern kitchen, a guest WC, and a separate utility room. A standout feature is the stunning pool, which extends gracefully from the covered veranda to the living space, creating a seamless indoor-outdoor experience.
Upstairs, you’ll find two generously sized bedrooms sharing a bathroom, including a luxurious master bedroom with en-suite facilities.
The project specification encompasses the following features, all of which are included in the price:
● Underfloor heating with water and separate zones in each floor.
● VRV cooling system, offering efficient and customizable climate control
● High ceilings 3.10m and high doors 2.40 m in all rooms
● Photovoltaic system 5.2K with solar panels
● Swimming pool included
● Full thermal insulation, Energy-efficient slimline aluminum ensuring Energy Efficiency Category A
● Security system with alarm and CCTV with 4 cameras
● Water pressure system, and water filter under kitchen cabinets
● Bathrooms equipped with convenient walk-in showers, safety glass, and wall-mounted toilets
● Private parking for 2 cars with electric gates and provision for electric car charger
● Barbeque area at kitchen level featuring space for outdoor entertainment
● Storage and plant room
Get your property inspected on sight by our trusted and unbiased professionals who will give you full report of the property condition. (See sample report)
You can also get an instant property report based on the location of the property using historic and current market data. (See sample report)
No results available
No results available
Support
Information
Cookie Consent. We use cookies to improve your experience, analyze traffic, and personalize content. By clicking "Accept," you consent to our use of cookies. Cookie Policy Privacy Statement