Cyprus Real Estate Marketplace

4 Bedroom House for Sale in Protaras, Famagusta District

  • 4
  • 4
  • 225m²
  • €1 200 000
  • ↓ €150 000 (11.11%)
Price per m²
€5333/m²
Title Transfer Fee
~€44,600

Price History

  • Ref. #: 14153
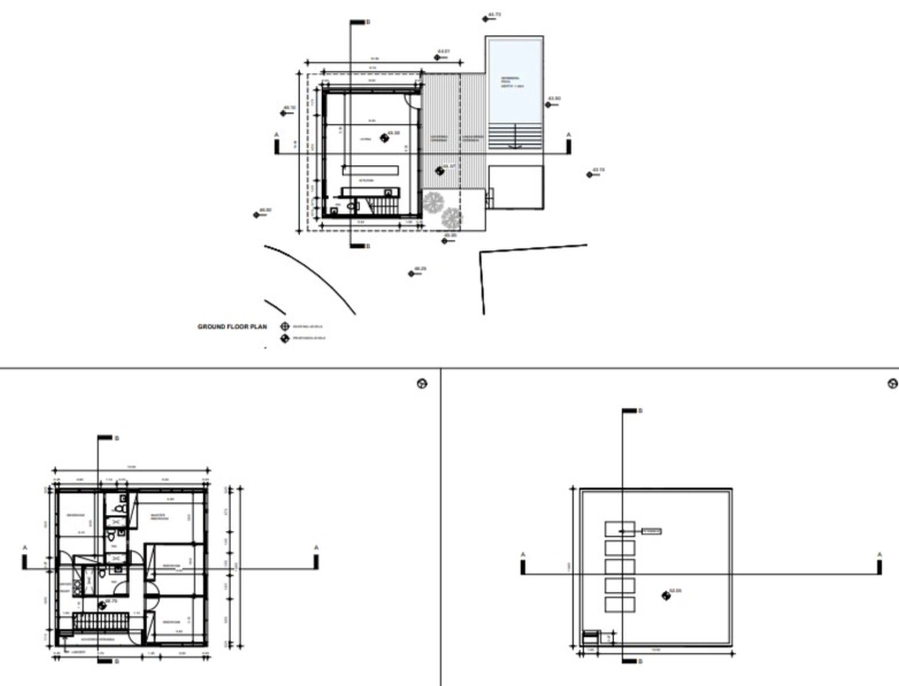
  • Plot area: 452m²
  • Parking: Yes, Covered  
  • Pool:Yes 
  • Energy Efficiency: A
  • Covered Veranda: 57 m²
  • Internal Area: 168 m²
  • Furnishing: Unfurnished  
  • Air Conditioning: Yes
  • Parking

Set next to the picturesque park of Cavo Greko in Protaras, this exclusive collection of eco-friendly villas offers a new vision of refined living in perfect harmony with nature. Designed for those who value privacy, serenity, and a leisurely lifestyle, these residences seamlessly merge sustainable modern design with the beauty of the surroundings — all just minutes from the crystal-clear waters of the Mediterranean.
Comprising five bespoke Eco-Lux Villas with 4–5 bedrooms each, the development offers a cozy and highly exclusive living environment. Every villa is a private sanctuary, featuring an infinity swimming pool, expansive open-plan interiors, and generous outdoor areas perfect for alfresco dining, relaxation, and gatherings with loved ones. A charming landscaped pathway weaves through the community, inviting tranquil strolls amidst the natural scenery.
Inside, floor-to-ceiling windows flood the spaces with natural light, while lofty ceilings, eco-conscious premium materials, and exquisite finishes create an atmosphere of understated elegance and lasting comfort. Each home also benefits from covered private parking for convenience and security.
This is a rare opportunity to own a residence in one of Cyprus’s most sought-after coastal locations — where pristine nature, sustainable living, and sophisticated design come together in perfect balance.

  • €1 200 000
  • ↓ €150 000 (11.11%)
Price per m²
€5333/m²
Title Transfer Fee
~€44,600

Price History

  • Agency
  • R.N.:1013 L.N.:517/E
0/5

0 of 5

Contact Seller Directly
Please enable JavaScript in your browser to complete this form.
Preferred method of communication
  • Seriously interested in this property?

Get your property inspected on sight by our trusted and unbiased professionals who will give you full report of the property condition. (See sample report)

You can also get an instant property report based on the location of the property using historic and current market data. (See sample report)

Other Listings of This Property

Similar to 4 Bedroom House for Sale in Protaras, Famagusta District

Data Analytics

Mortgage Calculator






Total Monthly Payment:

Monthly Principal + Interest:

Loan-To-Value Ratio (LTV):

  • INDEX is the largest Real Estate marketplace in Cyprus. We strive to bring technology and data related to properties in one place.
  • Message Us

Support

© INDX Ltd. 2025 Registered in Cyprus with Registration number HE443934.

We are not a Real Estate agency and do not operate as an Agency.