- €295 000
- +VAT
- ↓ €65 000 (18.06%)
- €3041/m2
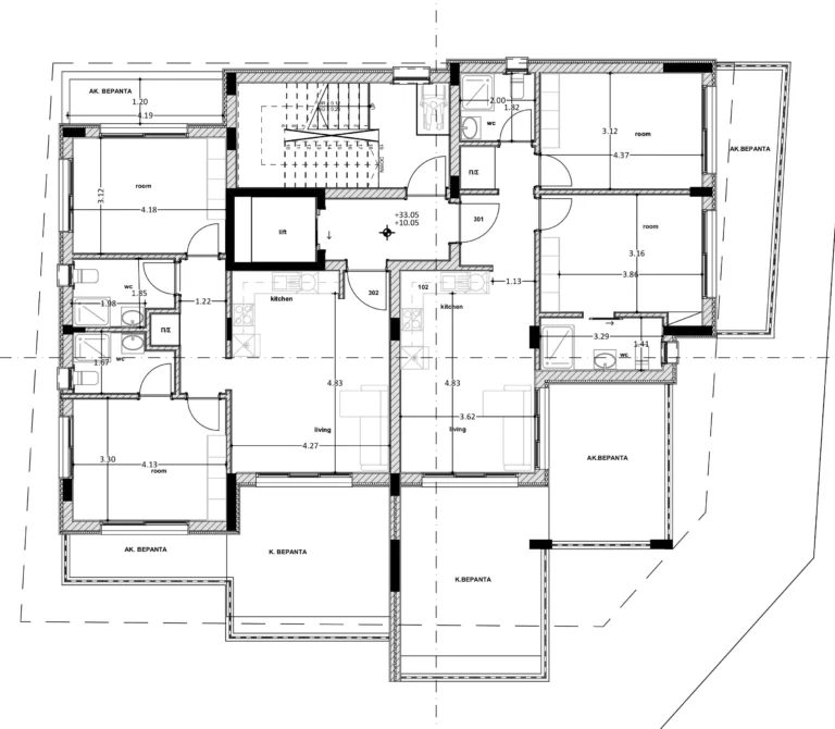
- 97m²
- 2
- 2
- 2027
- Under Construction
- 1 /
- Yes, Covered
- 241428
For sale: This modern two-bedroom, two-bathroom apartment is located on the second floor of a well-planned building in the sought-after neighborhood of Polemidia, Agios Spyridonas. With 75 square meters of internal space, this home offers both comfort and functionality. The building is currently under construction and expected to be completed in 2026, featuring an elevator for easy access and top energy efficiency rated A.
The apartment’s design emphasizes an open and bright living area, making it ideal for both families and professionals. The space is unfurnished, giving you the flexibility to personalize it to your taste. Large windows allow plenty of natural light, while quality finishes ensure long-lasting appeal.
Polemidia, Agios Spyridonas is known for its welcoming community atmosphere and convenient location. You will be close to schools, supermarkets, local shops, cafes, and public transport, making daily life easier and more enjoyable. The area offers a balance of quiet residential streets and quick access to city amenities, making it an attractive place to live.
This property is presented by Kazo Real Estate. Contact us today for more information and secure your new home in a modern, promising development.
Get your property inspected on sight by our trusted and unbiased professionals who will give you full report of the property condition. (See sample report)
You can also get an instant property report based on the location of the property using historic and current market data. (See sample report)
No results available
No results available
Support
Information
Cookie Consent. We use cookies to improve your experience, analyze traffic, and personalize content. By clicking "Accept," you consent to our use of cookies. Cookie Policy Privacy Statement